完善主体资料,免费赠送VIP会员!
* 主体类型
* 企业名称
* 信用代码
* 所在行业
* 企业规模
* 所在职位
* 姓名
* 所在行业
* 学历
* 工作性质
请先选择行业
您还可以选择以下福利:
行业福利,领完即止!

下载app免费领取会员

NULL

ad.jpg

CAD教程 | CAD绘图工艺流程图

发布于:2024-12-16 21:00:01
首页/技术分享/CAD
收藏
1449

BIM中文网

更多

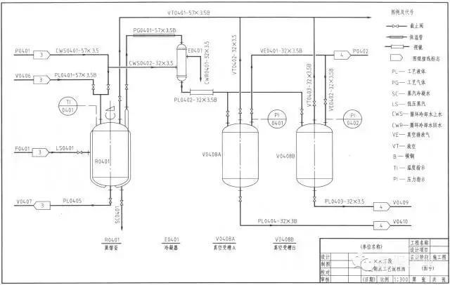
CAD绘图工艺流程图

CAD绘图工艺流程图是指通过计算机辅助设计软件进行绘图设计的一种工艺流程。下面我们将详细介绍CAD绘图工艺流程图的步骤和内容。首先,CAD绘图工艺流程图的第一步是确定绘图目的和要求。在进行绘图设计前,我们必须明确绘图的目的和要求,例如是为了展示产品结构还是为了制作工艺图纸。第二步是获取绘图素材和数据。在开始绘图之前,我们需要搜集相关的素材和数据,如产品的尺寸、材料等。这些信息对于正确绘制精确的图纸至关重要。接下来是进行CAD软件的操作。通过打开CAD软件,我们可以创建一个新的文件,并选择合适的绘图单位和比例。然后我们可以进行绘图区域的设置,以确保能够容纳整个绘图内容。在CAD软件中绘图的过程中,我们可以使用各种绘图工具和功能,例如绘制线条、创建曲线、添加文本说明等。通过这些工具,我们可以绘制出精确的图形和标注,以满足绘图要求。在完成绘图后,我们需要进行审查和修改。通过仔细检查绘图的内容和细节,我们可以发现并修正可能存在的错误或不足之处。这一步骤是确保绘图质量的关键。最后,我们可以保存和输出绘图文件。在保存文件时,我们可以选择合适的文件格式和命名规则,以方便后续的使用和管理。如果需要,我们还可以将绘制的图纸输出为打印版或电子版,以满足不同的需求和应用。总结起来,CAD绘图工艺流程图是一个系统而高效的绘图过程。通过明确绘图目的和要求、获取绘图素材和数据、进行CAD软件操作、审查和修改、保存和输出,我们可以绘制出精确、准确的图纸,满足各种绘图需求。

CAD绘图工艺流程图

本文版权归腿腿教学网及原创作者所有,未经授权,谢绝转载。

未标题-1.jpg

上一篇:Revit技巧 | Revit官方教程:关于嵌套和共享可载入族

下一篇:Revit技巧 | Revit官方教程:Revit可载入族示例

60acb4e0ef112.png