下载app免费领取会员
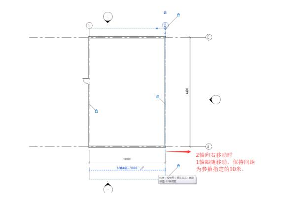
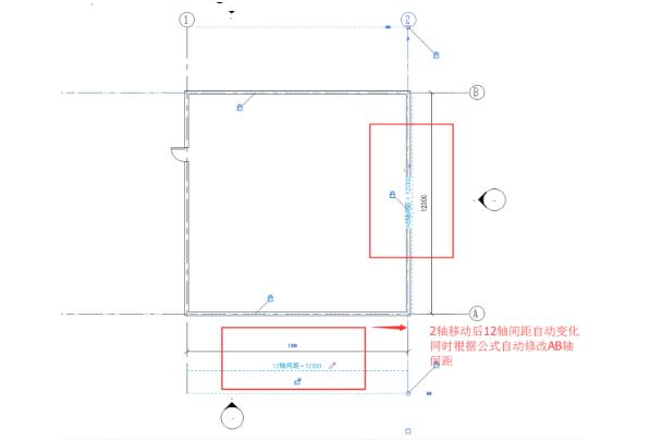
全局参数,除了可以在全局参数面板中进行参数值更改,也可以将其设置为报告参数,用来提取项目中的构件参数或尺寸间距。例如,创建全局参数时,如果没有勾选“报告参数”选项,则此参数只能通过修改数值的方式进行调整。

而如果将此全局参数更改为报告参数,12轴间距就可以通过移动轴线来进行调整了,此时移动命令将更改参数数值,从而根据公式自动更改AB轴间距。


本文版权归腿腿教学网及原创作者所有,未经授权,谢绝转载。
上一篇:Revit技巧 | Revit景深是什么?Revit景深效果介绍
下一篇:Revit技巧 | Revit拉伸技巧:Revit几何体拉伸方法
推荐专题