下载app免费领取会员
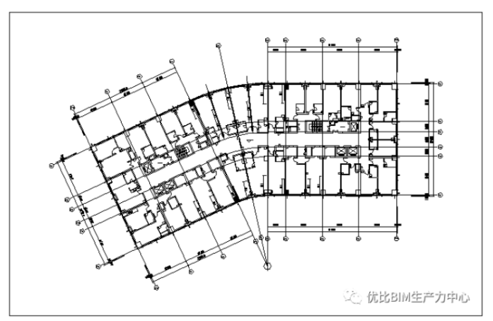
如果项目整体或局部平面是斜的,为了避免“歪着脖子”画图,同时也为了更精确地捕捉正交方向,需要对视图的方向作出调整。

图70:局部斜的平面
如图70所示,在进行左侧区域的绘制时,可将视图旋转成按左侧横平竖直,操作步骤如下:
1)将视图的“方向”参数设为“项目北”(一般默认值就是“项目北”),并打开“裁剪区域”的可见性(即打开,是否裁剪视图都可以,只需要看见裁剪区域的矩形框);
2)选择裁剪区域的矩形框,点击旋转命令,将旋转中心移到参照线(如斜向轴线)的一端,然后将旋转起始线设为水平线,旋转结束线设为参照线即可。注意起始线与结束线跟我们的直觉刚好是相反的,不要弄反了。也可以直接输入旋转的精确数值,同样需注意顺时针与逆时针,比如图71所示的例子,需旋转的角度为25°而非-25°。

图71:旋转裁剪区域的矩形框
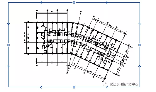
3)结果如图72所示,视图已旋转过来。如果需要回复原样,可以重新选择参照线再旋转一次,或者将视图的“方向”参数先设为“正北”,再设为“项目北”,视图方向即回复原样。

图72:裁剪框旋转后的视图
这里涉及到项目的“正北”与“项目北”两个概念,简单来说,“正北”为当前文件的绝对坐标的正北方向,“项目北”为控制全局的视图北向,通过“管理>>位置>>旋转项目北”命令可以对所有模型视图的方向作出统一设置,但此命令是影响全局的,且仅影响模型对象,不影响注释性图元(如文字),一般来说不应该在绘图过程中频繁修改。
利用二次开发,例如创筑的Revit插件(如图73)提供了上述操作的快速设置命令,直接拾取斜向对象或线条即可将视图旋转对齐。

图73:创筑插件提供的旋转视图命令
Revit中文网作为国内知名BIM软件培训交流平台,几十万Revit软件爱好者和你一起学习Revit,不仅仅为广大用户提供相关BIM软件下载与相关行业资讯,同时也有部分网络培训与在线培训,欢迎广大用户咨询。
网校包含各类BIM课程320余套,各类学习资源270余种,是目前国内BIM类网校中课程最有深度、涵盖性最广、资源最为齐全的网校。网校课程包含Revit、Dynamo、Lumion、Navisworks、Civil 3D等几十种BIM相关软件的教学课程,专业涵盖土建、机电、装饰、市政、后期、开发等多个领域。
需要更多BIM考试教程或BIM视频教程,可以咨询客服获得更多免费Revit教学视频。
本文版权归腿腿教学网及原创作者所有,未经授权,谢绝转载。
上一篇:Revit技巧 | revit管道怎么改坡度?如何一次修改连续的管道坡度?
下一篇:Revit技巧 | revit坐标系设置方法:Revit如何获取坐标值?
推荐专题