下载app免费领取会员
4.6.7-如何将公制窗改为幕墙窗
问题:某些时候需要在幕墙上添加门或者窗,只有使用幕墙窗或者幕墙门才能够替换幕墙嵌板,然而公制门窗族占多数,那么如何将公制门窗转换为幕墙门窗呢?
(1)选择公制窗进入窗族编辑状态,在族列表中选择基本墙,在“基本墙1”的基础上复制“基本墙2”如(图-1)所示,然后删除“基本墙1”如(图-2)。
【注意】忽略弹出的警告对话框。

图-1

图-2
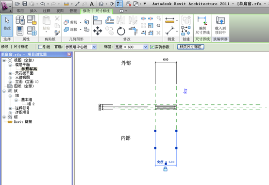
(2)进入平面视图将窗的宽度改为实例参数,运用同样的方法进入立面视图将窗高改为实例参数,并保存族文件。

图-3
(3)在样板文件中选择“公制幕墙嵌板”新建嵌板族,如(图-4)所示,单击“插入”选项卡>“从库中载入”面板>“载入族”工具载入刚才所保存的族文件,如(图-5)所示。


图-4

图-5
(4)运用对齐工具将窗两边与参照线对齐并锁住,运用同样的方法进入立面视图将窗高上下两边与参照线对齐,如(图-6)所示。

图-6
(5)把设置好的族文件载入到项目中,选择幕墙在属性下拉菜单中点击刚才载入的族文件如(图-7)所示。

图-7
本文版权归腿腿教学网及原创作者所有,未经授权,谢绝转载。
推荐专题