下载app免费领取会员
问题提出:有些时候我们在绘制的时候会有一些如(图-1)所示的小问题,不是连不上就是露出来的梁形状不规则,对于这种情况我们应该如何处理呢?

图-1
可以用基于线的梁来解决这个问题:
(1)打开新建族选项,选择如(图-2)所示基于线的公制常规模型族样板文件;

图-2
(2)打开基于线的常规模型后,我们使用实心放样命令先绘制出它的路径如(图-3)所示。

图-3
(3) 如(图-4)所示:,路径的两端分别跟两边参照平面锁定,完成路径。

图-4
(4)单击“编辑轮廓”,会弹出“转到视图”对话框如(图-5)所示,我们可以根据自己的习惯选择左或者右视图,这里我们进入左视图。

图-5
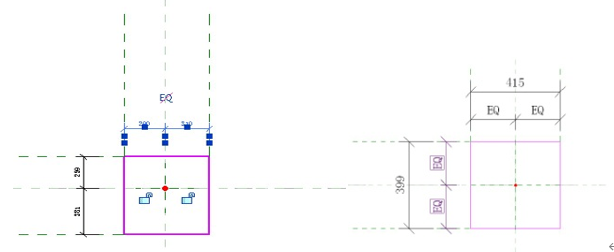
(5)如(图-6)所示,在左视图中我们绘制了一个矩形线框,并在两个边绘制参照平面,之后使用“标注”“EQ平分”“对齐”等命令完成图中内容。

图-6
(6)如(图-7)所示选择标注,在标签的下拉列表中选择添加参数。进入到“参数属性”对话框中,在“名称”中输入“宽度”,“参数分组方式”选择尺寸标注,选取“实例”。

图-7
(7)这就给基于线的梁添加了一个可调的宽度参数,同样方法给梁的轮廓添加个高度参数,完成轮廓,完成放样最终结果如(图-8)所示。

图-8
本文版权归腿腿教学网及原创作者所有,未经授权,谢绝转载。
上一篇:CAD教程 | 14个CAD图文教程,帮助您轻松学习CAD
推荐专题