下载app免费领取会员
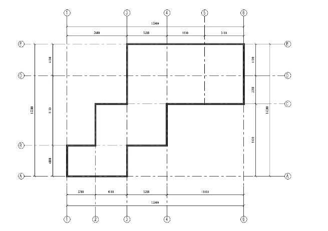
在使用Revit软件建模过程中,我们会经常要给轴网添加标注。在这个过程中我们会遇到这样一个问题:如果每一个楼层平面视图的轴网都相同的话,那么我们在添加尺寸标注时,通常采用的方法是点击注释选项卡→对齐→点击轴网进行标注,或者是在快速访问工具栏中选择对齐标注的工具→再选择轴网进行标注。如果每一个视图都按照上述两种办法进行标注,那么工作量会特别大。下面,我们来学习如何快速的创建出相同楼层轴网的尺寸标注。以下图为例:

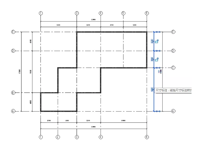
一、首先选中轴网的标注,任意一个标注即可。然后点击右键找到选择全部实例,选择在视图中可见,这样该层平面视图内的轴网标注我们就已经全部选中了。



二、然后在功能区中找到“复制到剪贴板”工具,选择从剪贴板粘贴,选择与选定的视图对齐。

三、选择相对应的视图点击确定即可




本文版权归腿腿教学网及原创作者所有,未经授权,谢绝转载。
上一篇:Revit技巧 | Revit创建参数化族怎么做?Revit族参数化设置部件是否可见
推荐专题