下载app免费领取会员
2.13 创建承台桩基础(下)
01.新建“公制结构基础.rfa”族样板,在“属性”面板中点击“族类别和族参数”,适当调整其类别与参数,如图2.13-1所示。

图2.13-1
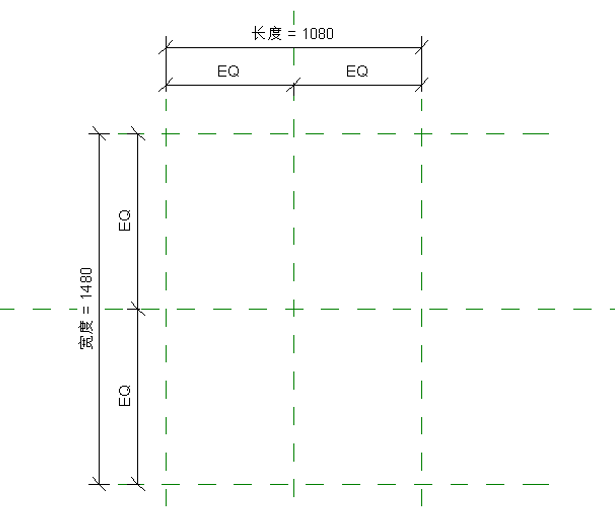
02.在“参照平面”平面视图中绘制相应的参照平面,并“对齐”、“等分”和赋予“长度”、“宽度”的参数属性,如图2.13-2所示,切换到“前”立面视图中,绘制一条参照平面,并“注释”和创建赋予“承台厚度”的参数属性,如图2.13-3所示。

图2.13-2

图2.13-3
04.切换到“参照平面”平面视图中,在“创建”选项卡下点击“拉伸”进行绘制轮廓,并“锁定”,如图2.13-4所示。

图2.13-4
05.切换到“前”立面视图中,将拉伸图形进行适当的调整高度,并“锁定”,如图2.13-5所示。

图2.13-5
06.新建子类别。切换到“三维”视图中,在“视图”选项卡下点击“可见性/图形”,在弹出来的面板中点击“对象样式”,在再次弹出来的“对象样式”面板中点击“新建”,新建一个名为“承台”的子类别,如图2.13-6所示。

图2.13-6
07.编辑属性,框选主体,在其“属性面板中,将“子类别”更改为“桩”,并将“材质”关联为“结构材质”,如图2.13-7所示。

图2.13-7
08.切换到“参照平面”平面视图中,绘制相应的参照平面,并“对齐”和赋予“桩边距”的参数属性,如图2.13-8所示。

图2.13-8
09.载入“桩.rfa”族样板,将其放置在相应的位置上,并“锁定”,如图2.13-9所示。

图2.13-9
10.切换到“前”立面视图中,创建一条参照平面,并“注释”和创建赋予“桩顶伸入承台深度”的参数属性,将桩身“对齐”到参照平面上并“锁定”,如图2.13-10所示。

图2.13-10
11.切换到“三维”视图中,调整“族类型”的参数值验证是否随参数值的变化而变化,如图2.13-11所示。

图2.13-12
12.关联“参数”,选择桩身,在其“属性面板中的“尺寸标注”中将“桩尖长度”关联为“桩尖长度”、“桩径”关联为“桩径”、“桩长”关联为“桩长”、“桩顶伸入承台深度”关联为“桩顶伸入承台深度”,如图2.13-13所示。

图2.13-13
13.承台桩基础绘制完成,将其命名为“承台桩基础”保存到计算机文件夹中。
14.创建隐藏线,以便在项目中可见桩顶伸入承台的虚线图形。切换到“参照标高”平面视图中,在“创建”选项卡下点击“设置”,选择“拾取一个平面”,在视图中拾取承台边缘的参照平面,跳转到“立面:前”视图中,在“注释”选项卡下点击“符号线”进行绘制轮廓,及“对齐”、“锁定”和赋予“桩径”的参数属性,并在“子类别”面板子啊更改为“隐藏线【投影】”,如图2.13-14所示。

图2.13-14
15.余下的几个立面如上个步骤所示。
16.创建“结构样板”项目,将“承台桩基础.rfa”载入项目中,随意放置桩,切换到“南”立面视图中,将“视觉样式更改为隐藏线,即可看见桩顶伸入承台的虚线表示,如图2.13-15所示。

图2.13-15
本文版权归腿腿教学网及原创作者所有,未经授权,谢绝转载。
上一篇:BIM等级考试二级结构教程 | 2.12 创建承台桩基础(上)
下一篇:成都5项智能建造经验做法向全国推广,官方发布发展智能建造可复制经验做法清单(第四批)
推荐专题