完善主体资料,免费赠送VIP会员!
* 主体类型
* 企业名称
* 信用代码
* 所在行业
* 企业规模
* 所在职位
* 姓名
* 所在行业
* 学历
* 工作性质
请先选择行业
您还可以选择以下福利:
行业福利,领完即止!

下载app免费领取会员

NULL

ad.jpg

BIM技术 | BIM技术案例分享:中国尊工程BIM技术应用

发布于:2025-03-22 11:50:01
首页/BIM专题
分享

中国尊位于北京中央商务区Z15地块,东临金河路,南至规划的绿地,西至金河路,北至光华路,它是北京最高的地标。中国尊于2012年9月开始积累,2013年7月29日正式开始建设。

2014年6月8日,宣布了“十个中国当代建筑”的入选结果,并授予“中国当代最佳建筑”的称号。地下建筑已于2014年12月10日完全覆盖。2016年8月18日,位于330米以上的中国国际贸易中心到达北京最高纪录2016年11月9日,“中国尊”的高度超过400米。2017年4月28日凌晨,“中国尊”的建筑物达到104层,超过了该建筑物的高度500米,它将成为首都的新地标和北京最高的建筑物(如图2)。

image.png 

图2中国尊大厦图例

建筑布局

工程2号楼是一栋工业化住宅楼,地下两层,地上二十七层。建筑物的总面积为11478平方米,单层面积为395.05平方米,楼层高度为2.9m,有两个梯子和四个住户,楼梯是剪式梯子。2-6层的壁之一是铸墙,顶板是层压板,而7-27层的壁是预制的,顶板是层压板。2号楼使用标准地板:22个外墙板,13个内墙板,46个层压板,11个预制悬臂组件,10个其他预制组件,共102个,其中外墙板由聚苯乙烯板制成挤压三明治控制板。该组件的最大重量为8吨,楼梯为4吨,混凝土消耗量为64.46立方米。

整个项目布局在施工过程中的工程创新技术和措施如表1所示。

BIM应用

(1)深化设计阶段

传统的站点布局以CAD平面图表示,很难将站点布局信息准确地传递给非专业项目参与者(例如A面),从而导致在站点施工期间对站点布局的看法不一致。BIM技术基于由三维信息模型创建的页面布局,该页面信息可以通过3D可视化直观,准确地反映出施工和装饰阶段的站点布局。本工程安全通道、钢筋加工棚等3D可视化场地布置图如图3所示。

考虑的另一件事是土方的平衡。如图4所示,REVIT软件根据地质调查局和设计院提供的站点的实际高度导入,运用BIM技术生成站点的真实3D地形图(图4a)。然后,创建一个站点平整模型,并使用实际站点地形图执行站点平整模拟计算,以获得BIM站点对齐分析图,如图4b所示。最后根据项目特点,占地面积41888.3平方米,建筑面积仅18635平方米。做比较土方的计划如图4c所示。最终,通过BIM对土方方案进行优化,并模拟了两个土方工程的土方开挖方案和回填方案,在黏土施工阶段将工程成本降低了近40万元。

表1工程创新技术和措施

image.png 

image.png 

图3 3D可视化场地布置图

此后,该项目立即针对生产,设计和其他利益相关部分进行了组件的深化设计。如预制墙的凹槽深化设计,包括:插入套筒的倾斜支撑的位置,模板和固定孔的位置,圆形龙骨的固定孔的位置,构件凹槽的结构,插入的木板外窗砖和其他预留孔。预制层压板的凹槽包括烟道气开口,内置的悬挂点,预制的电箱以及板的边缘和凹槽的设计等。由于BIM软件中集成了各种专业模型,因此可以检查所有孔的数量。视觉模型可用于视觉检查不合适的预留孔的位置。使用BIM加深设计修改,以便在不影响整体管道布局的情况下修改不适当的开口。

目前土木工程中的普遍现象是:由于缺乏专业人员来进行钢筋的总承包,项目的钢筋采样是由工作团队控制,甲方与工作人员或承包商之间信息是封闭的,因此钢筋的设计缺乏过程控制,这样通常会导致在项目完成之前过度使用钢筋的现象,并且合同的约束性较低。因此,本项目严格将BIM技术应用到先进的钢筋管理中,通过掌握人工采样,学习Glodon钢筋的3D建模和采样软件,最终达到3D采样指导设计的水平。

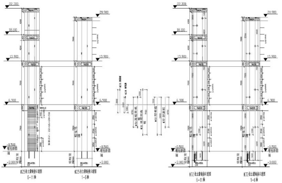
在做了BIM优化之后,决定2#柱钢筋的选用材料为HRB400E,最长的直径为28和35mm,最终设计的两个圆柱加强构件的示意图显示在图5给出来的构建钢筋的详细信息。

(2)构件生产阶段

根据2号楼的制造过程,运输要求和临时施工措施,BIM可以随时更改建筑模型的组件模型信息特征,调整建筑设计组件的应用程序布局,改进BIM模型并提高模型一致性。结构中的组件由门,窗,柱,梁和墙板等,在建筑过程中可由软件随时提供组件在某阶段所需要的特征信息表2所示。

image.png 

图4 土方计划比较

image.png 

图5 钢筋详图信息

表2 墙板构件属性信息

image.png 

施工实施阶段进度管理

在项目的实施阶段中,项目部根据网络总体建设进度,以此表编制了《交错施工周期表》,将所有的结构施工、预装修施工、精装修施工和外部排水沟施工通过安排并结合起来,进行一个有效的过程。连接并锁定每个分包商和每个流程计划的准确性,项目部门将在现场发布计划的计划以可视化进度管理,并将实施一个多流程和多个分包商。通过每天确认每个过程的进度来“同时且有序地”缔结合同,精确地进行“施工”。

出处:科学技术创新2021.28

作者:柳红燕(广州市城市建设职业学校)

仅供学习交流 如有侵权请联系删除

转载请注明来源本文地址:https://www.tuituisoft/bim/175752.html

未标题-1.jpg

上一篇:没有了

下一篇:没有了