下载app免费领取会员
一、BIM模块化建筑背景
模块化建筑是采用工厂化生产的构件、配件、部品,采用机械化、信息化装配式技术组装的建筑整体,其工厂化生产构配件精度能达到毫米级,现场组装精度要求也较高,从而满足各种产品组件的安装精度要求。总体来说,建筑工业化要求全面“精密建造”,要全面实现精细化设计、产品化加工和精密化装配。而BIM应用的优势,从“可视化”和“3D”模拟的层面,在于“所见即所得”,这和建筑工业化的“精密建造”特点高度契合。
模块化设计的思路是:首先将建筑整体划分为若干层,将层根据功能需求分解为若干个户型模块以及附属模块,再将户型模块以及附属模块分成不同类别构件,然后再将构件按照单元、层等逐级按照“搭积木”式组合成整体建筑。
二、BIM模块化建筑设计目标及意义
装配式建筑核心是“集成”,BIM则是“集成”的主线,串联设计、生产、施工、装修和管理全过程,服务于设计、建设、运维、拆除全生命周期,可数字化仿真模拟,信息化描述系统要素,实现信息化协同设计、可视化装配,工程量信息交互和节点连接模拟及检验等全新运用,整合建筑全产业链,实现全过程、全方位信息化集成。

BIM技术应用目标表
三、BIM模块化建筑设计流程
将BIM应用贯穿建设全过程,工作周期从施工图设计阶段开始到工程竣工交付结束,各阶段BIM技术应用流程如下图所示,明确BIM工作流程与协作关系。

四、BIM模块化建筑设计实施应用
01、模块化构建库
建模人员根据项目需求,在我司AOPS族库系统中通过结构树分级检索或关键字检索选择相应品牌构件进行下载,并结合系统内嵌的各专业样板文件进行建模,为项目建立数字化模型提供便利。

02、BIM模型建立及出图
根据模块化建筑特征将主体建筑进行单体模块拆分、编码、建模,最后通过组装完成模型创建及出图工作。

综合楼结构模型


宿舍楼机电模型

模块划分平面图

C1模块结构形式

C1模块建筑基本构造

C1模块机电三维出图

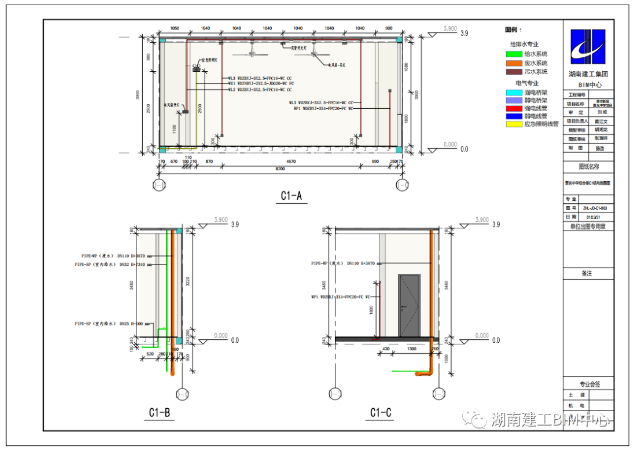
C1模块机电平面出图

C1模块机电剖面出图
03、辅助深化设计
基于BIM深化设计流程在钢结构节点和机电接驳深化进行精细化建模,分层次表达各复杂节点三维构造示意图,在深化过程中提前发现问题、在项目实施过程中利用BIM模型指导问题、在项目完成后利用BIM模型信息管理后期的运维。




04、施工场地布置
利用BIM技术结合公司CI策划建立标准化文明场地要求,现场临时设施和场地铺装的设计以绿色施工为指导方针,重视减少对资源的消耗、减少废弃物的排放、减少对环境的影响。根据公司CI策划建立标准化大门、围挡、五牌一图、宣传标语等族构件。

门楼及实名制通道

办公区BIM展示
05、施工模拟
利用BIM虚拟模拟,经过多次排布演示,半径覆盖等,充分考虑经济、安全、实用确定项目上机械选型,利用二维码交底技术,将各台的塔吊技术参数,黏贴于汽车吊对应处,方便管理人员等进行扫码查询。

吊装方案模拟

4D进度模拟
06、工程量统计
建立深化BIM模型后,可生成种类齐全、数据详实的构件及材料明细表,各种材料的用量、加工尺寸及构配件的规格、数量详尽直观,为钢结构专业分包管理及分包工程量结算提供了有力的数据支撑。

BIM工程量提取
五、总结
装配式建筑核心是“集成”,BIM则是“集成”的主线,串联设计、生产、施工、装修和管理全过程,服务于设计、建设、运维、拆除全生命周期,可数字化仿真模拟,信息化描述系统要素,实现信息化协同设计、可视化装配,工程量信息交互和节点连接模拟及检验等全新运用,整合建筑全产业链,实现全过程、全方位信息化集成。
Revit中文网作为国内知名BIM软件培训交流平台,几十万Revit软件爱好者和你一起学习Revit,不仅仅为广大用户提供相关BIM软件下载与相关行业资讯,同时也有部分网络培训与在线培训,欢迎广大用户咨询。
网校包含各类BIM课程320余套,各类学习资源270余种,是目前国内BIM类网校中课程最有深度、涵盖性最广、资源最为齐全的网校。网校课程包含Revit、Dynamo、Lumion、Navisworks、Civil 3D等几十种BIM相关软件的教学课程,专业涵盖土建、机电、装饰、市政、后期、开发等多个领域。
需要更多BIM考试教程或BIM视频教程,可以咨询客服获得更多免费Revit教学视频。
转载请注明来源本文地址:https://www.tuituisoft/bim/180596.html
上一篇:没有了
下一篇:没有了