下载app免费领取会员
一、公司简介
中国建筑一局(集团)有限公司(简称中建一局)总部位于北京,是2019年世界500强第21位、世界最大投资建设集团——中建集团旗下最具国际竞争力的核心子企业。2016年中建一局作为中国建设领域首家企业,凭借5.5精品工程生产线,荣获中国政府质量最高荣誉——中国质量奖,以专业、服务、品格“三重境界”代言“中国品质”。2017年荣获“质量之光”年度魅力品牌第一名;荣获莫斯科建筑行业质量最高奖——莫斯科市优质样板工程第一名,成为荣获该奖项的第一个中国企业。
主要资质
建筑工程施工总承包特级
市政公用工程施工总承包特级
工程设计市政行业甲级
工程设计建筑行业(建筑工程)甲级
公路工程施工总承包一级
机电工程施工总承包一级
环保工程专业承包一级
钢结构工程专业承包一级
地基基础工程专业承包一级
公路路面工程专业承包一级
公路路基工程专业承包一级
建筑机电安装工程专业承包一级
建筑装饰装修工程专业承包一级

二、项目概况
项目名称:大华锦绣华城配套学校校舍建设项目
项目地址:辽宁省大连市高新区凌水街道庙岭村红凌路以西E3地块
建设单位:大连高新技术产业园区教育文体局
监理单位:大连建安工程建设监理有限公司
设计单位:弘艺规划建筑设计有限公司
施工单位:中国建筑一局(集团)有限公司
建筑面积:建筑面积为45729㎡
合同金额:17508.36万元
施工工期:2019.03.29-2020.06.22

三.项目重难点分析:

四、BIM应用策划
实施目标

工程概况
本次BIM应用以大华项目为载体,以BIM模型创建为主体,模型应用为纽带,公司和项目两级项目BIM协同管理为主线目标,实现多项目BIM综合一体化技术应用。

项目策划

五、BIM技术应用点
1.BIM实施方案
依据中建一局集团《工程施工BIM模型建模标准》和《建筑工程施工BIM技术应用指南》(第二版)、《中国建筑一局(集团)有限公司建筑信息模型(BIM)技术研究与应用评价考核实施细则》、《BIM管理中心B级达标课件》制定了方案策划书。

2.临建CI标准化
集团公司CI标准创建临建及CI模型,建立临建模型后由CI负责人对办公区、生活区、施工区等进行CI集团标准化布置。

3.施工场地布置
大连市属于丘陵地形,场地内存在较大高差,基坑坡顶距离红线仅有2~3m。工程场地狭小,施工现场无宽敞区域。利用品茗三维施工策划软件对不同阶段的施工场地进行布置,做到材料堆放、机械布置等合理规划。施工现场未出现材料堆放不合理导致二次搬运的问题。

4.BIM实体样板
BIM团队通过建构造柱、桩、模板支护、砌体墙等BIM样板模型,协助项目实体工序样板搭建,并配合项目部开展各类展示活动,方便工程人员了解施工工艺,实现样板先于施工。


5.施工进度模拟
利用BIM技术进行建筑结构复杂节点及整体的功能模拟建造,在施工前期进行施工工序流程安排和各个交接面的工作划分,通过模型模拟施工进度,辅助实际现场管理工作。将计划工期与实际工期进行对比分析,依据分析结果调整现场资源配置情况。

6.编制材料计划
利用斑马软件对施工进度进行排序,并依据BIM模型对各阶段材料进行材料用量提取,对比分析,减少材料浪费。并提供施工材料预算进行目标成本控制,为成本管理、分包结算提供数据支持。

7.BIM模型审查辅助图纸会审
接收到图纸后,BIM团队进行建模,在建模过程中对发现的图纸问题做好记录并及时汇总,在图纸会审时结合模型说明问题。在建模过程中发现图纸问题47条并反馈施工方与设计方调整,避免了不必要的返工,同时也提高了图纸会审效率。

8.二次结构、砌体施工对比分析
教室二次砌筑模型建立了两个方案,一是传统的砌筑方式,根据模型提取用砖型号及用砖量,二是ALC墙板隔断,根据模型输出隔断尺寸,对比发现方案二更能减少材料浪费,缩短施工工期,节省材料费12万元、人工成本8.3万元、工期10天。

9.预制化构件加工
因项目工期短,现场地上墙体(除篮球馆)全部采用预制化ALC墙板,地上楼板全部采用预制化叠合板。大大降低了工程成本,同时也更利于质量控制。工厂生产出来的部件进行现场安装,减少现场施工及管理人员。加快了施工速度,降低工程造价。

现场篮球馆顶面采用预制双T板。双T板一块长27米,宽2.38米,一块重21.68吨。现场一共用了16块。工厂生产出来的部件进行现场安装,减少现场施工及管理人员,加快了施工速度,降低工程造价。


10.碰撞检测
依据BIM模型对建筑、结构、机电模型利用斯维尔软件做了过程审查,做整体单专业、多专业审查,其中建筑结构问题47条,通过Navisworks进行机电审查,机电冲突3000多处,并配合设计方做方案调整及优化补充。



根据原设计图纸创建三维模型,一共进行了四次碰撞检测,第一次检测发现发现3000余条单专业碰撞问题,对模型问题进行修改,避免了不必要的返工,同时也提高了图纸会审效率。地下建筑结构与机电综合管线优化。在整个过程中,为节省材料费3万元,人工成本节省近8万元,节省工期5天。


11.管线综合
采用Dynamo对结构模型显示效果进行参数化修改。根据梁底标高不同进行着色,从绿色到红色,代表了梁底标高的从高到低,从而有针对性的对结构标高低的部位进行管综优化。

12.深化设计
简装区域设计
我们将教学楼的所有装饰层全部绘制完成,对装饰施工部分的材料提取和各个重难点的深化设计提供技术支撑。我们通过BIM将空间各专业末端综合到天花图,并进行优化调整。实现了装饰与机电的末端软碰撞优化。

精装深化设计—教室
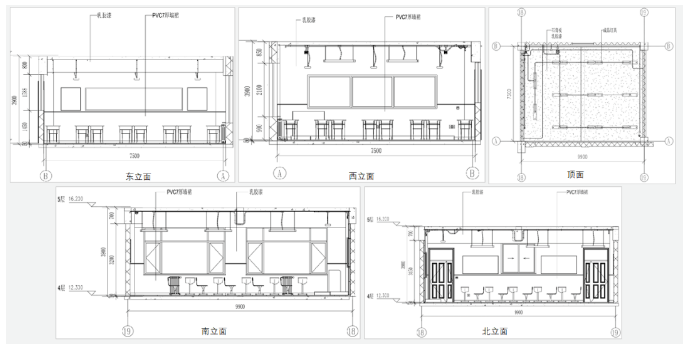
本项目教室空间偏多,依据设计图纸对教室进行精装BIM标准化设计,对墙、顶、地及讲台黑板、地面地插强电管线走向,顶面强电管线高差排布,黑板背面龙骨深化设计。


精装深化设计—大厅
对中学部大厅进行精装BIM设计,对大厅背景墙干挂浮雕优化、墙、顶、地、机电优化深化设计。


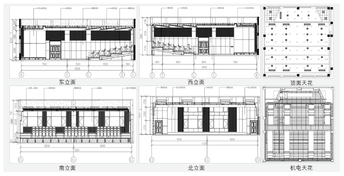
精装深化设计—多功能厅
多功能厅属于本项目装饰较为复杂的一项,设计到各专业避让与末端定位繁多,我们针对空间墙顶地及舞台墙地固定相互搭接都做了深化表达,精细化设计。




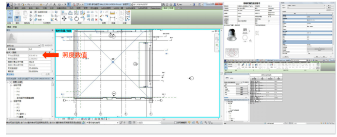
13.绿色节能分析
通过BIM模型,可以模拟真实数据布置多功能厅的照明灯具,并设置照度参数,对灯具的选型进行合理的调配。

运用BIM模型的声学分析,解决室内可能存在的声学缺陷,设计优化室内吊顶的造型及吸声材料的数量,让该空间的设计更加科学。声学响应分析要综合考虑几何声学和统计声学。下图为对不同频率、不同分贝的声音在不同时间段的综合声学分析。

14.可视化技术交底
建立BIM模型,使用VR装备辅助进行模型展示,可视化交底。通过CCBIM软件平台与VR眼镜相结合,对工作人员进行虚拟仿真技术交底,节省工期3天。

15.质量、安全
利用广联达云建造软件平台对现场质量、安全实行实时监控和管理,对发现的质量问题、安全隐患随时进行拍照记录,上传到云建造平台上,并通知相关整改责任人和复查人,同时在PC电脑端和APP手机端进行数据同步,实现联动高效管理。


16.移动终端
建立BIM三维模型,对预制ALC墙板进行可视化交底,提高工作效率,减少安全隐患,提高工程安全质量,项目管理人员使用移动终端查看,实际现场管理情况,指导施工,反馈现场问题,及时整改。

六、成果效益

我们将切实做好BIM模型竣工交付工作,针对工民建工程特有BIM运维需求,进行运维平台研发以及配套工程管理的融合,探索BIM在建筑工程管理集成尤其是高校建设工程全生命周期的应用。

转载请注明来源本文地址:https://www.tuituisoft/bim/186390.html
上一篇:没有了
下一篇:没有了