下载app免费领取会员

来源丨浙江正泰新能源开发有限公司
作者丨盛春、杨松、沈道军、罗易、李春阳、诸荣耀、周承军
摘要:对山地光伏电站基于Revit三维建模进行了系统介绍。浅析使用Revit光伏电站建模的方法步骤,结合实际项目分析三维建模对光伏组件排布设计的优越性,相比传统的二维设计,其更适用于解决山地等不规则地形电站的排布设计。通过三维建模分析可降低组件阴影遮挡造成的电站发电量损失,科学优化电站性能,提高电站的投资回报率。
关键词:Revit三维建模;组件排布;发电量损失
0引言
Revit系列软件是国内建筑BIM使用最多的软件之一,可提高建筑设计的质量与能效。
近年来,随着光伏电站建设型式的多样化,山地光伏电站及系列复杂地形的电站建设越来越多,但由于地形的复杂多变,使组件排布的间距设计相比常规地面电站复杂。Revit的三维建模恰好适用于解决该问题,其既能轻易消除前后排组件造成的阴影遮挡,又能解决场区内及周边地形高差或其他物体对场内组件造成的阴影遮挡问题,使电站设计得到优化,降低电站因组件阴影遮挡造成的发电量损失,有效提高电站的投资回报率。
1、项目建模简述
基于Revit的光伏三维建模,除Revit软件和建模方法,还需要项目地的测绘图纸,PVsyst计算的组件间距、倾角等基本设计参数。对于山地电站,一般数据要求测绘图精度1∶500;若地形较简单、地势较平坦,也可适当放宽要求。
具体步骤为:
1)打开Revit并创建一个“构造样板”。
2)在“管理”按键里打开“项目单位”,将单位中的长度修改为米。
3)在“插入”按钮下,导入CAD,选择需要建模的项目测绘图,修改“导入单位”为米,如图1所示。

图1项目CAD导入设置
4)因前面将单位从毫米修改为米,设置属性浏览器中的“可视范围”内相关参数放大1000倍,防止届时视图看不全的问题出现。
5)等高线识别:进入“体量与场地”,选择“地形表面”,此时界面会跳至“编辑表面”,选择“通过导入创建”,将弹出对话框,除“等高线”外的所有选项均废弃打钩并点击确认,如图2所示。

图2导入CAD等高线识别
6)三维图形及标高可视性图形设置:因CAD图导入除等高线外还会附带许多标注等信息,为项目设计的简洁与方便,对它们进行隐藏。
三维视图将“模型类别”中“地形”与“场地”保留可视,其余选项均不保留;“导入的类别”中也一样,“导入的项目”保留可视,其余均不保留;“标高一”需额外保留红线,其余和三维视图相同。

图3可视图形保留设置
7)导入组件族(族的建设见下节),并在“标高一”红线范围内完成二维排布。
8)在“标高一”中创建剖面,将坡面线移至组件桩基中心处,然后前往坡面进行组件高位与倾角调整。上、下高位可直接选中组件进行调整,离地高度参照项目实际要求;倾角调整,若项目统一倾角在建族时设置参数即可,但山地一般都为随坡,在属性浏览器中进行调整,调至组件中间两个足露出地面相同高度即可。

图4组件的三维调整
9)所有组件调好后,切换到“三维视图”,将画面调整为“精细与真实”并打开“阴影”;然后在“日光研究”中打开“日光设置”,时间参数设置如图5所示;地点设置由“用户定义”按钮进入,根据项目地实际位置在地图上找到具体位置即可。

图5日光研究时间参数设置
10)设置完毕进行“日光研究”,在09:00与15:00排查整个场区的组件阴影遮挡情况;若有组件遮挡,返回“标高一”与剖面按标准调整,直至两时间点组件均无阴影遮挡情况。
2、族的创建
光伏组件方阵族的创建由6个简单的族组成。族1:单块组件;族2:方阵组串;族3:带倾角的方阵组串;族4:单根桩柱;族5:带倾角的4根桩柱;族6:光伏组件方阵。
打开Revit新建族,对话框有许多文件类型。在创建族1、2和3时,选择“基于面的公制常规模型”;创建族4、5和6时,选择“公制常规模型”。
2.1族1的创建
1)新建族;
2)用“创建”里的“参照平面”功能,在面板绘制一个边长为组件实际长度的矩形并居中;
3)拉伸:拉伸矩形如图6所示,并设置深度为组件厚度(如40mm);
4)边框拾取:使用“创建拉伸”下的“拾取线”功能,偏移量设置为组件边框(如20mm),拾取矩形4边,使之向内生成新的小矩形;
5)着色:选中小矩形,在属性浏览器中进入“材质设置”,“材质选择”默认颜色填充为蓝色;
6)保存为族1。

图6族1矩形拉伸
2.2族2的创建
1)新建族;
2)参照平面创建:先在项目浏览器中视角选择“立面(右)”,然后“创建参照平面”,与参照标高成23°夹角(根据项目组件倾斜角调整),并使用“注释”里的角度标注进行标注角度,点击角度数字在标签设置中“参数名称”填为组件倾角,如图7所示;
3)工作面创建:从“创建”功能下的“设置”进入,拾取之前步骤2创建的参照平面,如图8所示,然后在视图跳转对话框选择“楼层平面”打开视图;
4)组件导入:使用“插入”下的“载入族“功能将族载入,在项目浏览器找到族1,左键将其拖入工作平面并水平放置;
5)组串的制作:按组串中实际组件间距,先排上下两块,后使用阵列功能一次完成并将组串中心与参照平面中心对齐;
6)保存为族2。

图7参照平面创建

图8工作平面创建
2.3族3的创建
1)新建族;
2)参照平面创建:先在项目浏览器中视角选择“立面(右)”,然后“创建参照平面”,与参照标高成10°夹角(根据项目方阵实际倾斜角度调整),并使用“注释”里的角度标注进行标注角度,点击角度数字在标签设置中“参数名称”填为方阵倾角,该步骤与族2的一致;
3)工作面创建:与族2的方法一致;
4)导入组串:使用“族载入”功能将族2放置于工作面中心处。
5)保存为族3。
2.4族4的创建
1)新建族;
2)桩柱创建:使用“拉伸”功能创建一半径160mm圆形,拉伸2500mm(半径及长度根据项目实际情况设定参数),后使用拉伸中的直线在圆形中写一“凹字”,并设置拉伸起点2500mm、拉伸终点2750mm;
3)保存为族4。
2.5族5的创建
1)新建族;
2)参照平面创建:建4个竖向的参照平面,互相间距设为2500mm;
3)桩柱导入:导入族4,在每个面的中心放置1个桩柱,并使用“修改”中的“对齐”功能锁定其位置;点击“对齐”按钮后点击步骤2创建的参照平面,再点击圆形内的“参照平面”,此时出现一个锁的图标,点击即完成锁定;
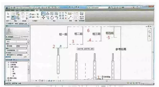
4)参照平面创建:视图切换到“立面(前)”,创建6个参照面(如图9所示),如图依次注释并在标签设置名称为:阵列倾角、桩一距、桩二距、桩三距、桩四距、参考标高;之后使用“对齐”功能将参照面2~5与桩1~4分别对齐完成锁定;
5)族类型参数设置:如图10所示,由“族类型”按钮进入设置界面,设置“参考标高”数值并编辑其他几个公式即可;
6)保存为族5。

图9支架参照面创建及位置锁定图

图10族类型参数设置
2.6族6的创建
1)新建族;
2)族载入:载入族3与族5,放置于工作平面,视角转换到“立面(前)”,下调族5位置至族3阵列中心处;
3)参数设置:分别选中族3与族5,对其进行编辑类型,将方阵倾角内的“方阵倾角”选上,然后到“族类型”中将参数属性中的“类型”改为“实例”,并将外边的方阵倾角调为项目实际数据;
4)族模型线创建:根据项目要求组件最低点离地高度可知该位置在族4桩柱上的位置,在该位置创建一个工作平面,切换视图后用模型线在该处勾勒一个大小相同的圆,将族4载入替换至族5中,将族5载入替换到族6中;
5)完成保存。
3、可行性分析
组件阴影遮挡一直是影响光伏电站发电效率的重要因素之一。以往设计通过PVsyst软件计算等方式取得项目地阴影遮挡倍率,然后使用天正建筑等配套软件分析其实际遮阴,解决屋面与地势简单的电站排布设计。
随着光伏电站建地的地形复杂化,二维排布设计局限性越来越明显。承建山地项目使用二维设计做排布时,在项目设计中切身体会过因地形复杂给设计带来的困难,相比常规地面电站,设计工作量的增加与整体设计质量的下降十分明显。由现场施工实况反馈,局部地段阴影遮挡情况严重,如图11所示,设计与实际兼容性不够。上述情况发现后,项目及时采取了重设返工;若不采取措施,该因素日后必会严重影响电站的发电效率,而且长期的部分组件阴影遮挡会导致组件热斑效应与电流电压适配现象,增加电站的运维压力。

图11项目现场1月份08:50拍摄
决定重设后,设计换用了Revit三维建模软件完成排布工作。其操作难度不高,族的创建虽相对繁杂,但同一个形态的族可延用到多个项目中。设计阶段能通过三维视图的日光研究分析不同时刻电站的日照情况,从日光分析可直接观察到当前排布组件在不同时刻受到来自相邻组件、场区地形或场区周边其他物体造成的阴影遮挡。
该功能的排布设计优化能力十分强大,能够科学提高电站设计的质量、降低施工后才发现问题所带来的返工及其他问题。图12为该山地电站项目完成建模的冬至日09:00的日光分析示意图。

图12冬至日09:00日光分析图
4、结论与建议
1)传统二维排布设计,操作简单可胜任设计平地屋顶等地势简单的电站;但运用于设计山地等复杂地形电站时,工作量巨大,且反映效果不够直观,与实际情况融洽率低。
2)Revit三维建模设计,操作略微复杂,可胜任各类电站排布设计,建模成型可进行日光分析,能直观地模拟电站在不同时刻的阴影遮挡情况,与实际情况融洽率高。
Revit三维建模在山地电站等地势复杂的光伏电站承建中优势大,既可降低设计工作量,又能达到电站消除阴影要求;能够科学优化电站设计,减小因组件阴影遮挡带来的电站发电效率损失;既能降低前期不必要的额外投入和后续运维成本,又可提高发电效率增加收益,进而提高电站的投资回报率。
参考文献
[1]廖小烽.Revit2013/2014建筑设计火星课堂[M].北京:人民邮电出版社.
转载请注明来源本文地址:https://www.tuituisoft/bim/186476.html
上一篇:没有了
下一篇:没有了