下载app免费领取会员
01.点击“文件”选项卡——“新建”——族,在弹出来的新建族对话框中,选择“公制门.rft”族样板,点击“打开”按钮,创建一个新族。
02.绘制门框路径。在“内部”立面视图中,点击“创建”选项卡中“放样”的“绘制路径”进行对门框的路径进行绘制,并把放样路径轮廓线锁定在参照平面上,点击“完成”,如图2.9-1所示。

2.9-1 门框路径
03.编辑门框轮廓。点击“编辑轮廓”,绘制相应的参照平面,然后绘制门框轮廓,以及把轮廓线“对齐”并“锁定”在参照平面上,并分别进行“对齐”注释和创建“门框厚度1”、“门框厚度2”、“门板厚度”参数标签,点击“完成”,如图2.9-2所示。切换到“三维”视图,选中门框模型,对其属性面板进行编辑,设置其子类别为“框架/竖梃”如图2.9-3所示。

图2.9-2 门框轮廓 图2.9-3 属性
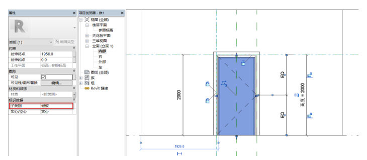
04.绘制门板。在“创建”选项卡下点击“拉伸”进行绘制门板轮廓,并“锁定”至门框内缘,点击“完成”,切换到“内部”立面对门板进行适当拉伸门板厚度至相应的参照平面上,并对其“锁定”。选中门板模型对其“属性”面板进行编辑,将其子类别设置为“嵌板”如图2.9-4所示。

图2.9-4 门板
05.编辑族类型。点击“属性”面板中的“族类型”进行适当调整各族参数,并检查各参数所驱动的模型实体变化是否正确,如图2.9-5所示。

图2.9-5 族类型
06.添加门把手。在“内部”立面视图中创建相应的参照平面,如图2.9-6所示,并在资源库中载入门把手族,在“参照标高”中放置门把手,同时将“门把手”进行“对齐”和“锁定”至参照平面上,完成后如图2.9-7所示,将族保存到本地的文件夹内。

图2.9-6 门把手参照平面
图2.9-7 门
转载请注明来源本文地址:https://www.tuituisoft/bim/249887.html
上一篇:没有了
下一篇:没有了