下载app免费领取会员
内容整理:共享BIM
厄瓜多尔德尔西水电站设计阶段BIM技术应用汇报

一、工程概况及特点、难点
德尔西水电站位于南美洲厄瓜多尔沙默拉河上,装机容量180兆瓦,多年平均发电量12.181亿千瓦时,总库容64万立方米。工程主要建筑物有首部枢纽、左岸引水系统、发电厂房及其附属设施组成。本工程是中国电建集团首个由设计单位牵头的国际水电站EPC项目。涉及专业多、建设工期短、成本控制严、质量要求高、协作难度大、传统技术和方法难以满足工程需求,因此全面应用BIM技术进行水电站设计。


二、BIM应用技术路线
平台建设:基于3DExperience平台建立完整的项目管理流程,通过CATIA、ItasCAD、博超STD等专业软件的双向对接,构建数字化协同设计平台,进行标准化设计、碰撞分析、计算分析、工程出图等应用实践,并拓展应用到方案模拟、工艺仿真、虚拟现实、多维可视化管理等方面。综合集成工程项目数据源,搭建统一的项目数据中心。为工程全生命周期的高效化、精细化管理提供有效支撑。
工作流程:基于3DExperience平台定制详细的BIM工作流程,从项目创建、项目策划、数据归档、数据发布每一个BIM应用环节都进行科学规划统一管理。
技术标准:参照LOD、ISO—15926、IFCIX等国际标准建立完备的公司级BIM技术标准体系,用于指导BIM技术应用、统一BIM行为。

三、设计阶段BIM应用及价值
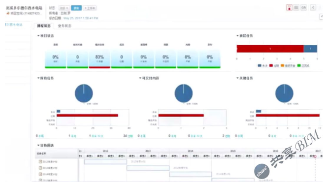
项目管理:本工程采用3DExperience平台实施项目启动、项目计划、项目执行、项目监控,将传统的设计流程项目管理经验与BIM特点相结合,实现设计阶段BIM应用的流程化、标准化。

数字化设计:以3DExperience平台为核心各专业设计软件为基础,配置协同设计平台环境,建立项目骨架实现各专业内部、各专业之间数字化协同工作。

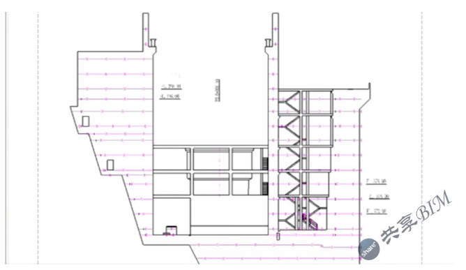
协同设计:水电工程真实坐标往往较大,将模型通过骨架与绝对坐标进行关联,运用骨架控制建筑物位置。地质专业,基于我公司自主研发的地质设计管理系统ItasCAD,通过整合地形点云、物探等原始资料,建立了地形地质模型和工程地质数据库。水工专业,从数据中心调用地质模型建立设计骨架。从模板库调用模板,通过修改参数快速建立各部位水工建筑物。基于BIM模型自动统计工程量,利用BIM模型进行工程布置方案的优化。电器专业,通过自主研发的博超STD与CATIA双向接口导入水工模型致STD进行电器设备布置,设计成果一键导入CATIA进行运用。水、机、电等专业,参考厂房模型调用标准元件库进行快速布置。

碰撞分析:利用BIM模型进行碰撞分析,共发现硬碰撞72处,厂房与机电35处,机电与机电37处。软碰撞48处。根据碰撞检测报告提前调整设备布置,避免机电安装时,设备管路互相干涉和冲突,减少返工。

计算分析:基于BIM模型,对结构进行一体化分析和优化设计,一体化的设计计算避免了重复建模,提高设计效率减轻设计人员工作量。

工程出图:基于自主研发的CATIA水电工程图扩展工程集,进行厂房、枢纽、机电部分的自动出图,极大提高了出图速度和效率。

在线校审:基于平台,校审人员无需安装三维设计软件,通过网页便捷的完成三维模型的检查、批注,提高校审效率,保证设计质量,规范化、一体化的设、校审方案,解决了三维设计无校审或依赖线下校审的局面。

设计变更:基于3DExperience平台实现变更申请、变更审批、模型版本提升、模型修改、模型校审发布等变更全过程管理。
方案模拟:基于BIM模型,进行岔洞段钢岔管的运输方案模拟,通过模拟四种不同的运输方案寻找出可高度最高的运输方案。

工艺仿真:引水系统水平段长度约9公里,竖井总高度429米。如此高的竖井工程少见,一般常采用反井钻开挖。为节省工期基于BIM模型模拟了正井法全断面施工的工艺,辅助项目进行施工方案的选择决策,并为项目大幅度的节省了工期。

虚拟现实:利用已建的三维信息模型实现动态可视化展示,结合交互式、沉浸式体验使项目各参与方更加直观身临其境的了解工程信息。

电站多维可视化管理:通过对水电站结构进行分析研究提出电站多维可视化管理理念,确定专业、部位、系统三个维度的可视化管理机构,基于模型统一管理工程量、施工、采购、质量、安全等工程信息,方便项目不同参与方使用。

多方信息共享:基于3DExperience平台统一管理项目文件,EPC项目部统一管理参建各方基于同一平台进行项目文件的获取,实现线上沟通及问题反馈,降低沟通成本。

数字化移交:基于工程数据中心将BIM模型与图纸、报告等文档资料有机结合与关联,给业主提交包含工程信息的虚拟化电站。打破工程建设领域长期以图纸报告为主要的交付物的现象,为后期电站智慧运维提供基础。

四、总结
设计阶段BIM集成应用:基于统一的平台和数据架构进行设计阶段的项目管理、数字化设计、数据存储和信息沟通,使设计差错减少80%以上,现场修改数量减少约60%,现场协调会数量减少约30%,工程数据查找效率提高约500%,极大提升了BIM应用效率及效果。
各专业数字化协同设计:打破部门和专业界限,开展大坝、厂房、泄水、电气等24个专业和部门的数字化协同设计,提高综合设计效率约25%、出图效率约60%以上,实现了项目数据共享和可追溯以及项目、业务流程和数据的纵向一体化。
基于BIM的设计管理流程化:提出基于BIM的设计过程管理流程和管理方法,编写企业级BIM标准30余份,与BIM应用无缝对接,实现了BIM应用的标准化和规范化。
设计成果多维可视化管理:提出水电站多维可视化管理理念,使业主、设计方、施工方分别以专业、部位、系统维度查看工程信息,极大减少沟通成本,提高沟通效率。
Revit中文网作为国内知名BIM软件培训交流平台,几十万Revit软件爱好者和你一起学习Revit,不仅仅为广大用户提供相关BIM软件下载与相关行业资讯,同时也有部分网络培训与在线培训,欢迎广大用户咨询。
网校包含各类BIM课程320余套,各类学习资源270余种,是目前国内BIM类网校中课程最有深度、涵盖性最广、资源最为齐全的网校。网校课程包含Revit、Dynamo、Lumion、Navisworks、Civil 3D等几十种BIM相关软件的教学课程,专业涵盖土建、机电、装饰、市政、后期、开发等多个领域。
需要更多BIM考试教程或BIM视频教程,可以咨询客服获得更多免费Revit教学视频。
转载请注明来源本文地址:https://www.tuituisoft/bim/184293.html
上一篇:没有了
下一篇:没有了