下载app免费领取会员
疏散模拟系列教程(一)
本教程介绍Revit中完成BIM模型搭建后,如何将Revit模型转化为Pathfinder中的疏散分析模型,为疏散模拟做好准备。

(a)三维视图

(b)1F平面图

(c)2F平面图
图1Revit模型
第一步,将模型在三维模式下导出dwg或者dwf,如图2所示。

图2导出dwg
第二步,在pathfinder中导入刚才导出的dwg文件,如图3所示。

(a)

(b)

(c)

(d)
第三步,创建分析模型的楼层标高,本楼共两层,层高为4m,如图4所示。

(a)AddNew

(b)4m

(c)8m

(d)完成标高创建
图4创建分析模型楼层标高
第四步,选中刚才创建的楼层Floor4.0m与Floor8.0m,并将其隐藏,如图5所示,这时在三维视图中仅显示0~4m处的图元,如图6所示。

图5隐藏楼层

图61F三维模型(0~4m)
第五步,鼠标单击楼板将其选中,单击【Visible】将其隐藏,如图7所示。

(a)

(b)
图7隐藏图元
第六步,将视图切换至平面视图,然后在左侧工具栏中选取矩形或多边形绘制按钮,参考墙体边缘线绘制Room(相当于Revit中的楼板),如图8所示。

(a)

(b)
图8绘制room
Pathfinder中也提供了一种识别平面生成room的功能按钮【extractfloorfromimportedgeometry】,在左侧工具栏中点选该按钮,然后在模型中依次点选楼板,程序便可自动生成Room,如图9所示。

(a)

(b)
图9自动识别生成Room
选择上方工具栏中红框中的按钮可以隐藏导入的Revit模型,如图10所示。

(a)

(b)
图10隐藏导入模型
用矩形工具绘制两个楼梯间处的两个局部Room,如图11所示

(a)

(b)
图11绘制楼梯间room
第七步,用相同的方法完成2F中room的绘制,如图12所示。

图122F中room绘制
第八步,在三维视图中利用左侧工具栏中Room转换工具,识别并生成楼梯间休息平台处的Room,如图13所示。

(a)

(b)
图13休息平台处room的绘制
第九步,在左侧工具栏中,单击红框内的按钮,并在上方菜单栏中填入楼梯的参数(踏步高度与宽度),如图14(a)所示,点选图14(c)中编号1箭头所示Room边缘,然后点选编号2箭头所示Room边缘,便可完成楼梯的绘制,如图14(d)所示。

(a)

(b)

(c)

(d)
图14楼梯绘制
第十步,点选左侧工具栏中红框内的按钮【AddaNewDoor】,并在上方菜单栏中设置门的宽度,在模型相应的位置处完成door的绘制(注:Pathfinder分析模型建立时,同一标高的Room用door来连接,不同标高的Room用楼梯或斜坡来连接)。当door布置在两个Room之间时,两个Room被连通,疏散模拟时人员可以出入该门;当door布置在一个Room边缘时,如图15(b)中建筑两侧的绿色door所示,这时该door为疏散出口,人员疏散模拟时,人员将向该处疏散出建筑。

(a)

(b)1F

(c)2F
图15完成各层Door的绘制
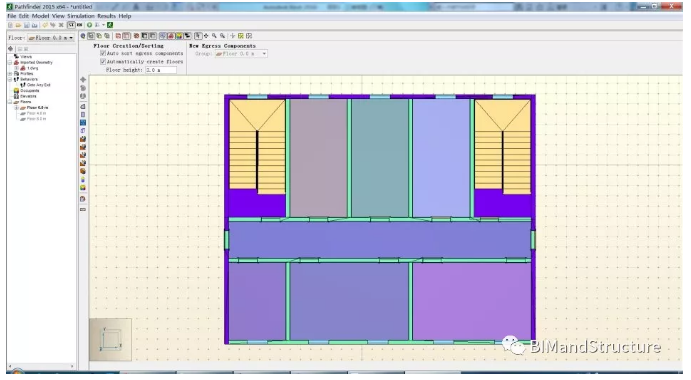
完成Room、Stairs与Door的绘制后,一个简单的疏散分析模型就完成了,如图16所示。

图16Pathfinder疏散模型
Revit中文网作为国内知名BIM软件培训交流平台,几十万Revit软件爱好者和你一起学习Revit,不仅仅为广大用户提供相关BIM软件下载与相关行业资讯,同时也有部分网络培训与在线培训,欢迎广大用户咨询。
网校包含各类BIM课程320余套,各类学习资源270余种,是目前国内BIM类网校中课程最有深度、涵盖性最广、资源最为齐全的网校。网校课程包含Revit、Dynamo、Lumion、Navisworks、Civil 3D等几十种BIM相关软件的教学课程,专业涵盖土建、机电、装饰、市政、后期、开发等多个领域。
需要更多BIM考试教程或BIM视频教程,可以咨询客服获得更多免费Revit教学视频。
转载请注明来源本文地址:https://www.tuituisoft/bim/184331.html
上一篇:没有了
下一篇:没有了