下载app免费领取会员
MagiCAD机电BIM模型深化
六脉神剑,《天龙八部》中大理段氏的最高武学,所谓六脉神剑,是指含于指尖的内力隔空激发出去的,使其以极高速在空中运动的一门技术。
在武学中,天下武功,唯快不破。当武功的速度达到极致的时候,有时候不需要复杂招式,只是简单的一招"快"就可以克敌。
在机电BIM深化阶段,面对工期紧,工程复杂,人手不够,我们唯有"快"才能保证模型深化进度。那么让我们一起看一下MagiCAD"六脉神剑"为深化设计提供了哪些招术,请点击下方视频一起来修炼一下吧!
碰撞检查
MagiCAD碰撞检查功能,集成于Revit平台,无须转换至第三方平台进行碰撞检测,提高了工作效率;实时碰撞可以在管线绘制过程中智能检测,避免绘制过程中的碰撞;非实时碰撞,可以对于模型按照标高、区域、项目等范围进行检测,同时提供了安装间隙检查的软碰撞和各专业之间干涉的硬碰撞;针对碰撞结果结合MagiCAD交叉功能与预留孔洞功能,完成管线优化调整。


交叉处理
MagiCAD交叉处理功能提供水平、竖直交叉处理方式,以及单管交叉、多管交叉处理方式,自动计算翻弯间距范围,可以解决管线综合排布或局部调整时的翻绕问题。同时智能识别、提取参照对象的高度信息,并支持对当前模型与链接模型的翻绕。

预留孔洞
利用MagiCAD“预留孔洞”功能对机电管线进行洞口预留。土建专业根据计算判定是否可开洞,使用开洞工具完成实际开洞。

智能移动
安装支吊架时一般会要求管道底部对齐,MagiCAD智能移动功能,可参照已有管线或土建模型智能调整目标管线标高,无需人工计算管线标高,减少模型调整时间,提高深化设计效率。

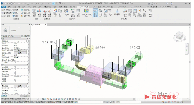
管线预制化
MagiCAD提供管线分段功能,将管线按照固定长度或者指定长度进行自动分段,同时结合管线编号与扩展表格等将机电BIM模型延伸至预制化阶段。可对项目中的图元进行实际工程量统计,并可自定义材料清单模板参数类型,按照项目实际需求指定模板适用范围,一键导出风管、水管、桥架、设备等构件的工程量清单,同时支持风管管件的展开面积统计。

平衡计算
MagiCAD管线系统平衡计算功能,可进行通风、采暖、空调、给排水和喷淋等系统管径自动选择,软件根据自动选择标准精准调整管线尺寸。通过平衡计算可对管线系统进行参数校核及阀门开度值计算。较大程度减少人工计算和施工调试时间,有效地把控整个管线系统参数计算准确度。


来源:BIM 微信公众号 BIM鱼塘
仅作分享交流
转载请注明来源本文地址:https://www.tuituisoft/bim/188715.html
上一篇:没有了
下一篇:没有了