下载app免费领取会员
2.2绘制管道不可见的原因
调整视图范围、平行管道的作用、软管的作用及绘制
2.2.1调整视图范围
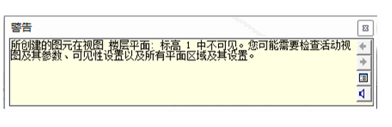
在绘制管道时,软件提示“所创建的图元在视图 楼层平面:标高F1 中不可见”。如图2.2-1所示。

2.2-1
这是因为,我们所绘制的管道标高不满足当前视图的视图范围限制,在当前视图中无法显示。我们可以通过单击“Esc”退出绘制状态,找到“属性”面板中的“视图范围”,单击“编辑”打开“视图范围”选择框来确定或者调整当前视图的视图范围。如图2.2-2所示。

2.2-2
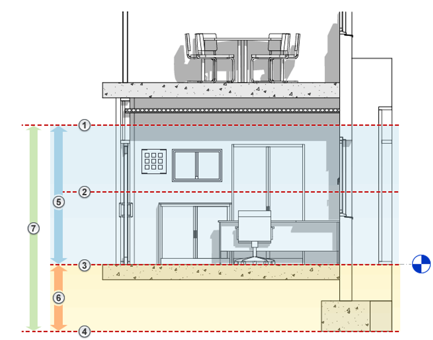
每个平面图都具有视图范围属性,该属性也称为可见范围。 定义视图范围的水平平面为“俯视图”、“剖切面”和“仰视图”。 顶剪裁平面和底剪裁平面表示视图范围的最顶部和最底部的部分。 剖切面是一个平面,用于确定特定图元在视图中显示为剖面时的高度。 这三个平面可以定义视图范围的主要范围。视图深度是主要范围之外的附加平面。 更改视图深度,以显示底裁剪平面下的图元。 默认情况下,视图深度与底剪裁平面重合。
相关标高可以理解为绘制模型时的参照标高,那么“顶部”高度就是“相关标高”加上偏移值所在的高度。超过这个高度的图元就将不可见。
同理,“底部”高度就等于“相关标高”加上偏移值,低于此高度的图元将不可见。
“剖切面”就是对此范围内的某一位置进行剖切,剖切面以下就是我们可见的图元。如图2.2-3所示。


2.2-3
“剖切面”的高度设置要等于或小于顶部范围,并且等于或大于底部范围;“视图深度”要等于或小于底部范围,这样才能实现视图范围的设置。否则会出现错误的警告。如图2.2-4所示。

2.2-4
2.2.2平行管道的作用
在“系统”选项卡下方的“卫浴和管道”面板中可以找到“平行管道”工具。如图2.2-5所示。

2.2-5
“平行管道”工具用于根据初始管路创建管道的平行管路。所以,在使用“平行管道”工具时,需要先绘制或选择一根管道作为初始管路。然后单击“平行管道”工具,在“修改/放置平行管道”上下文选项卡中,我们可以设置水平/垂直数及水平/垂直偏移距离。如图2.2-6所示。

2.2-6
接着单击初始管路,要选中整个管路,可以将光标放置在管段上,然后按Tab键。如图2.2-7所示。

2.2-7
绘制完成后如图2.2-8所示。

2.2-8
2.2.3软管的作用及绘制
软管可用于高层建筑物排水通风、供热等管道系统,但现在生活中的的应用也比较常见了。软管的作用可以分为三点:①减少管道的安装应力;②补偿管道的位置移动;③吸收管路系统的震动。
软管的绘制方法和管道的绘制方法基本一致。单击“系统”选项卡,在“卫浴和管道”面板中单击“软管”功能工具(快捷键:FP)。接着将会弹出“修改/放置软管”上下文选项卡,我们可以在“修改/放置软管”选项栏中修改软管的直径大小以、偏移值及标高(仅限三维视图、立面视图和剖面视图指定参照标高)。如图2.2-9所示。

2.2-9
设置完成后,在绘图区域单击鼠标左键,定位软管的起点位置,接着向任意方向绘制软管,再次单击鼠标左键确定软管的端点。如图2.2-10所示。

2.2-10
绘制完成后,按Esc键可退出绘制状态。如果想要编辑或修改软管,则只需要单击绘制完成的软管,将进入“修改/软管”状态,在“修改/软管”选项栏中可以调整软管的直径大小。如图2.2-11所示。

2.2-11
在绘图区域中,通过移动软管的顶点,可以调整软管的管路以及长度。如图2.2-12所示。

2.2-12
本文版权归腿腿教学网及原创作者所有,未经授权,谢绝转载。
上一篇:BIM等级考试二级设备考试图文教程2.1如何绘制管道?
下一篇:成都市房屋使用安全检查评估办法
推荐专题