下载app免费领取会员
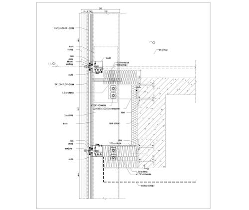
本文主要介绍了幕墙节点图的识别方法。幕墙是指安装在建筑外墙上的非承重结构,具有美观、隔热、保温、防雨等功能。幕墙节点图是设计师用来指导施工的重要文件,包含了幕墙的节点位置、结构细节及施工要求等信息。幕墙节点图的识别是幕墙施工的关键步骤,准确的识别能够保证施工的质量和顺利进行。

幕墙节点图中包含了丰富的信息,其特点主要有:
首先,幕墙节点图是一种二维图纸,通过图纸上的图形和文字来表达幕墙的节点构造。图纸上的图形通常是线条或实体图形,用来描述不同构件的形状和位置。
其次,幕墙节点图中的文字说明非常详细,包括了构件的材料、尺寸、连接方式等信息。文字说明通常采用标准化的符号和缩写,用来简洁地表达复杂的概念。
最后,幕墙节点图通常是按照一定的比例绘制的,使得施工人员可以按照图纸上的尺寸进行操作。同时,幕墙节点图还包含了施工顺序和安装要求等信息,以指导施工人员按照正确的步骤进行施工。

幕墙节点图的识别是指通过观察和解读图纸上的信息,准确地理解并掌握图纸中的各项要求。幕墙节点图的识别方法主要包括以下几个步骤:
首先,需要了解幕墙的基本构件,包括铝合金型材、玻璃、密封胶等。对于每种构件,需要熟悉其形状、尺寸、特点和用途等。通过了解不同构件的特点,可以更好地理解图纸中的图形和文字说明。
在幕墙节点图中,标准符号和缩写的使用非常普遍。学习和掌握这些标准符号和缩写,对于准确解读图纸非常重要。常见的标准符号和缩写有:箭头表示连接方式、实线表示实体构件、虚线表示隐藏构件等。
在识别幕墙节点图时,需要仔细观察图纸上的细节,包括线条的粗细、箭头的方向、符号的位置等。这些细节往往可以提供重要的信息,帮助我们理解图纸中的要求。
幕墙节点图中的文字说明非常重要,通过阅读文字说明,可以了解构件的详细尺寸、材质、连接方式等。需要特别注意文字说明中的关键词,如“注意”、“禁止”、“必须”等,这些词语往往代表了施工的要求和限制。
在识别幕墙节点图时,可以结合自己的理解,绘制一些简单的示意图来帮助自己理解图纸中的要求。通过绘制示意图,可以更加直观地表示构件的形状和连接方式,加深对图纸内容的理解。
总之,幕墙节点图的识别是一项需要耐心和细心的工作。通过掌握幕墙构件的知识、学习标准符号和缩写、仔细观察图纸细节、阅读文字说明以及绘制示意图等方法,可以更好地理解和掌握幕墙节点图的要求,从而保证幕墙施工的质量和顺利进行。
本文版权归腿腿教学网及原创作者所有,未经授权,谢绝转载。
上一篇:Revit技巧 | revit中镜像命令是什么?Revit通过镜像命令绘制一些复杂的楼梯的教程
下一篇:Revit技巧 | 如何建造Revit 自适应构件族——建筑表皮及幕墙建模
推荐专题