下载app免费领取会员
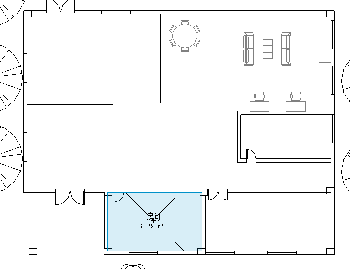
房间命令是Revit中比较实用的一个功能,创建房间时必须是在一个封闭的空间内,但有时会出现明明是封闭的房间却放置不了的情况,下边做个案例分享。图中结构柱为链接模型,在默认情况下链接模型是不可以作为房间边界的,所以房间不是封闭的。下面将介绍如何解决这个问题,如图所示。

1、选中链接模型,编辑类型,勾选房间边界,如图所示。

2、完成后再次放置房间就可以顺利放置了,如图所示。

意义:在Revit软件中放置房间或者空间不同类别的构件,不仅可以对名称进行区分,还可以用于空间的回风量、排风量等进行分析。但实际工程中,建筑和结构模型很多情况下是分开建模的,并且最后通过链接的方式进行整合,所以需要通过上文中的方式对模型进行编辑,合理的放置房间、空间,以方便后期进行分析等工作。


本文版权归腿腿教学网及原创作者所有,未经授权,谢绝转载。
上一篇:Revit技巧 | Revit如何可快速查找大梁?需要哪些操作?
下一篇:Revit技巧 | Revit如何创建异形幕墙?需要哪些步骤?
推荐专题