下载app免费领取会员
经常在Revit中建模完成后,我们都会进行模型校核,不仅查找错误,也会对模型的外观进行美化。
模型校核过程中,通常会发现一些小问题,可能不是建模时绘制错误导致的,但是也会影响我们外观效果。下面给大家讲解一个我们常遇到的外观问题。
内墙与外墙连接时,由于墙连接方式问题,导致内墙伸出外墙,在外观上有重叠、阴影。严重影响模型外观和成果交付。如图1所示:

图1
如何解决这个问题呢?
首先,将“三维视图”与“平面视图”平铺,并在平面视图找到问题处,如图2所示:

图2
启动功能区【修改】→【几何图形】→【墙连接】命令,如图3所示:

图3
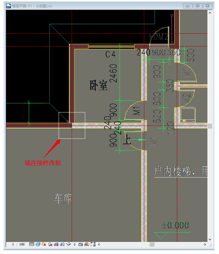
启动墙连接命令之后,选择问题处,单击,就会出现一个方形框,这是修改预选,如图4所示:

图4
然后,功能区下方选项栏中出现墙连接编辑,如图5所示:

图5
这时我们只需点击“上一个”“下一个”,就可以转换墙连接方式,使我们模型外观正确,如图6所示:

图6
这时不仅解决墙连接问题,也会优化模型外观。
Revit中文网作为国内知名BIM软件培训交流平台,几十万Revit软件爱好者和你一起学习Revit,不仅仅为广大用户提供相关BIM软件下载与相关行业资讯,同时也有部分网络培训与在线培训,欢迎广大用户咨询。
网校包含各类BIM课程320余套,各类学习资源270余种,是目前国内BIM类网校中课程最有深度、涵盖性最广、资源最为齐全的网校。网校课程包含Revit、Dynamo、Lumion、Navisworks、Civil 3D等几十种BIM相关软件的教学课程,专业涵盖土建、机电、装饰、市政、后期、开发等多个领域。
需要更多BIM考试教程或BIM视频教程,可以咨询客服获得更多免费Revit教学视频。
本文版权归腿腿教学网及原创作者所有,未经授权,谢绝转载。
上一篇:Revit技巧 | Revit不显示颜色怎么办?关于Revit如何在当前视图显示全部颜色填充图例
下一篇:Revit技巧 | revit如何制作斜墙?Revit参照平面巧绘斜墙
推荐专题