下载app免费领取会员
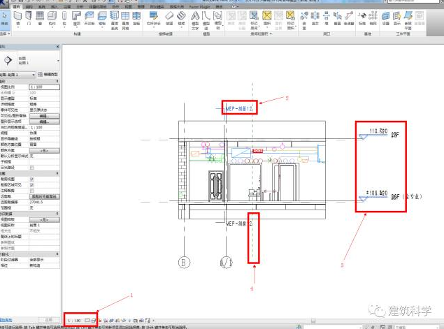
使用revit的朋友们都体会过,当我们使用剖面命令进入剖面视图的时候,出现如下问题:

1.视图比例,详细程度,视觉样式不是自己所需要的
2.出现其他的剖面视图符号,影响视图效果
3.由于模型链接,标高重叠
4.建模使用的参照平面依旧存在
那么该如何处理这些问题?

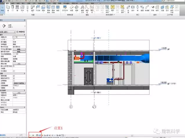
将视图比例,详细程度,视觉样式设置为自己所需要的

使用VV命令,进入“注释类别”,将“剖面”与“参照平面”的勾号去掉




使用VV命令,点击“revit链接”选项,进行“自定义”处理,将链接的revit模型中的“注释类别”——“标高”前面的勾号去掉。
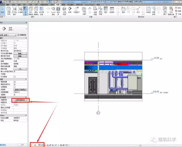
实现以下剖面效果

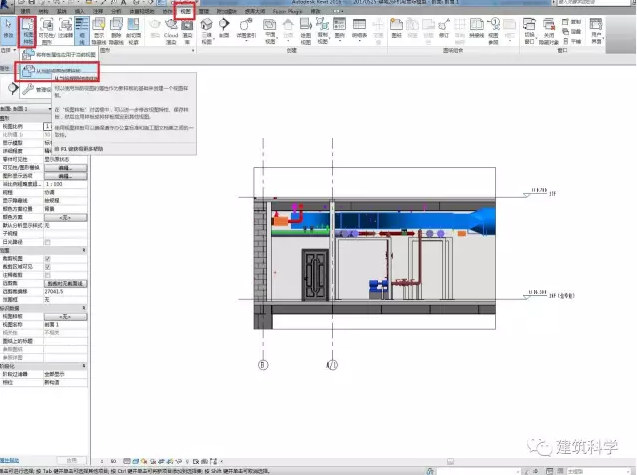
点击“视图”——“视图样板”——“从当前视图创建样板”


创建“剖面视图样板”,在视图属性中勾选所需选项
进入新的剖面视图

大家可以发现,新的剖面视图依旧混乱,如上图所示,点击“视图样板”

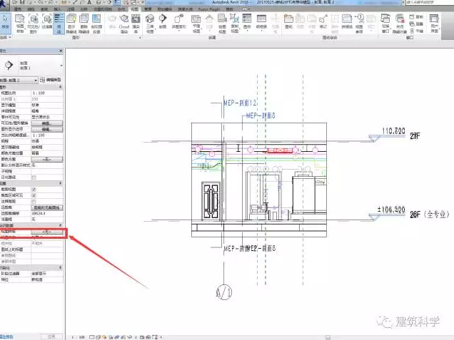
应用“剖面视图样板”,则新剖面无需重复设置,就达到较好的剖面效果

Revit中文网作为国内知名BIM软件培训交流平台,几十万Revit软件爱好者和你一起学习Revit,不仅仅为广大用户提供相关BIM软件下载与相关行业资讯,同时也有部分网络培训与在线培训,欢迎广大用户咨询。
网校包含各类BIM课程320余套,各类学习资源270余种,是目前国内BIM类网校中课程最有深度、涵盖性最广、资源最为齐全的网校。网校课程包含Revit、Dynamo、Lumion、Navisworks、Civil 3D等几十种BIM相关软件的教学课程,专业涵盖土建、机电、装饰、市政、后期、开发等多个领域。
需要更多BIM考试教程或BIM视频教程,可以咨询客服获得更多免费Revit教学视频。
本文版权归腿腿教学网及原创作者所有,未经授权,谢绝转载。
上一篇:Revit技巧 | revit体量分割表面怎么用?REVIT如何快速表面分割
下一篇:Revit技巧 | revit如何测量高度?Revit如何测量梁底距风管顶的高度?
推荐专题