下载app免费领取会员
文章来源:Revit自行车

写在前面:在了解Revit的建模流程和思路后,以及之前偶然去听广厦公司关于Revit软件结构应用的讲座,心里有点头绪,关于利用Revit出图,无非也就是利用Revit软件中的属性值,提取并且加以利用。所以,在项目闲暇之余,也研究下如何输出(梁配筋)图纸。

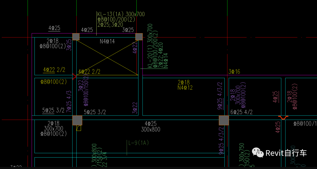
CAD视图

Revit视图
或许有人会问,为什么只有局部截图?
首先需要明白,因为在没有插件等辅助软件配合的前提下,这就相当于十几年前,没有探索者软件,纯CAD结构制图一样,效率明显偏低。
其次,这个不是我负责的项目(项目要求也并没有输出图纸),我也只是探索如何达到梁配筋的表达效果(点到为止),最重要也是近期有点忙,不然也不至于接近一个月没更新新内容。
对于模版图可以参考上期的文章《关于从Revit输出结构模板图的研究|Revit011》,本次项目是一所幼儿园,结构形式为框架结构。所以,涉及的构件就只有柱、梁和板。如果考虑到输出DWG文件,需要设置对应输出的图层(其实后面刷图层也可以)。

柱:将默认的“S-COLS”改为“S-COLU”

梁:将梁隐藏线(虚线)改为“S-BEAM-DASH”

板:边界线默认“A-FOLR”改为“S-BEAM”,即改为梁实线

轴网:图层改为“A-AXIS-GRID”
(以上涉及图层均根据院内的图层标准修改)
不可以避免地,我还是没办法不经处理,将Revit输出成标准的CAD图纸,但可以经由处理使用这份导出的成果,而最直接就是当模版图使用。

针对梁配筋的结果未使用,是由于Revit使用的字体与CAD的字体文件形式不同。如果可以接受Revit字体,自然可以,反之则需根据要求做调整。

总结
▼▼▼
1.以上的操作仅仅是使用Revit自带的功能命令,利用参数属性和符号标记表达属性值。只有亲身绘制过,才能深刻地感悟到,不是结构工程师不喜欢尝试Revit制图,而是结构专业表达的都是二维平法示意,并不着重于Revit三维表达。另外就是效率着实太低了,从CAD制图到Revit制图需要各方共同配合转型。
2.至于我的想法,可以排除钢筋这一块。先尝试Revit建模、输出模版图,并且通过BIM结构模型与其他专业,在设计前期做一个碰撞、协调和优化。BIM的应用并不是要死磕在Revit这一个软件,而是将新软件、新技术应用起来。
Revit中文网作为国内知名BIM软件培训交流平台,几十万Revit软件爱好者和你一起学习Revit,不仅仅为广大用户提供相关BIM软件下载与相关行业资讯,同时也有部分网络培训与在线培训,欢迎广大用户咨询。
网校包含各类BIM课程320余套,各类学习资源270余种,是目前国内BIM类网校中课程最有深度、涵盖性最广、资源最为齐全的网校。网校课程包含Revit、Dynamo、Lumion、Navisworks、Civil 3D等几十种BIM相关软件的教学课程,专业涵盖土建、机电、装饰、市政、后期、开发等多个领域。
需要更多BIM考试教程或BIM视频教程,可以咨询客服获得更多免费Revit教学视频。
本文版权归腿腿教学网及原创作者所有,未经授权,谢绝转载。
上一篇:Revit技巧 | 钢筋大样图怎么画?一个利用Revit绘制墙柱钢筋大样的思路
下一篇:Revit技巧 | revit怎么放停车位?Dynamo在停车位族编号的技术应用教程
推荐专题