下载app免费领取会员
感谢:sacrifice1127的水利BIM的博客
博主:东成西就大侠提供的原创文章和视频
原文地址:http://blog.sina.com.cn/s/blog_6d808ed90102wq0z.html
用Revit 2017软件现有的功能
其实就可以建立较为简单的变截面连续梁桥梁和钢筋模型
完全不用去做二次开发或者可视化编程
当连续梁桥梁的中心线为一条直线
并非三维空间曲线的时候
Revit自身的功能就可以比较快捷的建立桥梁模型
只需要建立变截面箱梁的族
设定好关键的一些参数
通过参数驱动箱梁的形体
然后直接放置箱梁族即可
完全没有压力
至于箱梁中的钢筋
在Revit 2017中已经对钢筋的功能有所加强
可以处理不是太复杂的变截面的形体的钢筋布置
Revit 2017中处理不是特别复杂的结构形体已经是很轻松的事
也正如早几年我对Revit钢筋功能的预期
它必将会在钢筋的功能上有所改进
这也是我最早计划对Revit的钢筋进行二次开发
然后又放弃这个念头的的原因
早期的Revit 2014的钢筋二次开发的API还非常有限
根本无法满足我对较为复杂的异形结构的钢筋建模的需要
所以尝试之后就放弃了二次开发来解决问题的思路
现在我更加期待Revit 2018在钢筋功能上的再提升
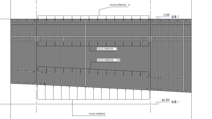
下面是我做的较为简单的变截面连续梁桥梁和钢筋模型的内容
这部分的内容不需要二次开发
只用到Revit 2017基本的功能
特别是通过Revit 2017的钢筋功能建立钢筋模型
可以根据变截面箱梁的几何参数
来自动调整钢筋的数量、长度等等几何尺寸
钢筋与结构主体是相关联的
是动态的数据更新,不需要做许多无谓的调整
非常的快捷和方便
这样才是BIM应有的高效率
而不是通过Excel或者计算器
先把大量的数据计算好了
再根据相关的数据去建模
这样的思路就不是BIM的思维方式
只能是CAD+EXCEL的常规套路
无法实现数据的动态更新
我个人是不建议以这种思维方式去做BIM相关的开发
其他也不多说,上图。









本文版权归腿腿教学网及原创作者所有,未经授权,谢绝转载。
上一篇:(课程配套博文)利用dynamo创建TBM盾构模型(一)
推荐专题