下载app免费领取会员
许多刚从CAD切换到Revit工作模式中的人,经常会遇到一些小障碍,可能问题不大,但是却很影响图面表达,尤其是绘制施工图时,由于Revit中的图元都是由族组成的,不能像CAD中一样只通过对线条的修改就能够达成目的。因此我们策划了这一系列的技术文章,希望能够帮助大家扫除在施工图绘制时遇到的软件障碍。

轴网在Revit中作为基准图元,绘制的主体构件的参照线,基本会出现在每个视图,并且默认情况下各个平面视图中的轴网都是按相同形式显示的,长度及位置关系都不会发生变动,当平面视图中有形体凹凸时,在某个视图中合适的轴网位置在另一个视图中可能就会被遮挡,如图1中所示,一二层中的轴网默认都在同一个位置,但是二层有凸出的造型,轴网在此与模型图元重叠了。
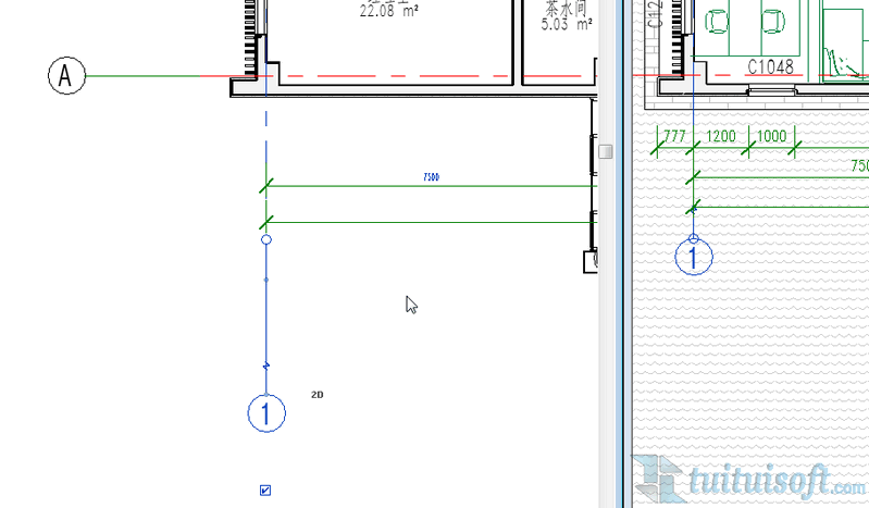
要控制不同视图中的轴网根据视图布置显示,可以利用轴网的3D与2D模式的切换。在项目中,轴网默认为3D模式,当单击轴网时,轴网边上会以蓝色小字提示,如图2所示,在3D模式下,对轴网所做的修改和调整会影响到所有视图。
单击蓝色提示文字“3D”可以切换到“2D模式”,如图3所示将轴网切换到2D模式,在2D模型下时对轴线所做的修改只会显示在本视图中。如图4所示,拖动标高二中的2D轴网位置,一层中的轴网位置并没有发生变化。

因此,利用轴网的2D显示模式,可以对个别视图中轴网的特殊显示要求进行个性调整,整体图面表达效果更加完整。
本文版权归腿腿教学网及原创作者所有,未经授权,谢绝转载。
上一篇:Revit选项栏不见了怎么办?(消失的Revit选项栏)
推荐专题