下载app免费领取会员
01.新建“公制结构基础.rft”族样板,在“属性”面板中点击“族类别和族参数”,适当调整其类别与参数,如图2.9-1所示。

图2.9-1
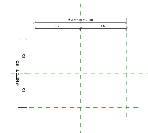
02.在平面视图中绘制四个参照平面,并“对齐”、“等分”和创建赋予“基础低长度”、“基础低宽度”的参数标签,如图2.9-2所示。切换到“前”立面视图中,绘制三个参照平面,并“对齐”、“等分”和创建赋予“h1”、“h2”、“h3”的参数标签,如图2.9-3所示。

图2.9-2

图2.9-3
03.在“参照标高”平面视图中,点击“创建”选项卡下的“拉伸”进行绘制轮廓,并“锁定”,在其“属性”面板下将“材质”关联为“结构材质”,点击“完成”,如图2.9-4所示。

图2.9-4
04.切换“前”立面视图,将拉伸图形顶部约束在“h1”参照平面上,底部约束在“参照标高”上,如图2.9-5所示。

图2.9-5
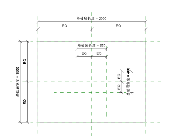
05.切换到“参照标高”平面视图中,在视图中绘制适宜的参照平面,并“对齐”、“等分”和创建赋予“基础顶长度”、“基础顶宽度”的参数标签,如图2.9-6所示。

图2.9-6
06.在“创建”选项卡下点击“融合”,先在“编辑顶部”模式下绘制基础顶部轮廓并“锁定”,如图2.9-7所示,之后在“编辑底部”模式下绘制绘制基础底部轮廓并“注释”、“锁定”,在其“属性”面板下将“材质”关联为“结构材质”,点击“完成”,如图2.9-8所示。

图2.9-7

图2.9-8
07.切换“前”立面视图,将拉伸图形顶部约束在“h2”参照平面上,底部约束在“h1”参照平面上,如图2.9-9所示。

图2.9-9
08.在“参照标高”平面视图中,点击“创建”选项卡下的“拉伸”进行绘制轮廓,并“锁定”,在其“属性”面板下将“材质”关联为“结构材质”,点击“完成”,如图2.9-10所示。

图2.9-10
09.切换“前”立面视图,将拉伸图形顶部约束在“h3”参照平面上,底部约束在“h2”参照平面上,如图2.9-11所示。

图2.9-11
10.独立锥形基础绘制完成,如图2.9-12所示,将其命名为“独立锥形基础”保存到计算机本地文件夹中。

图2.9-12
本文版权归腿腿教学网及原创作者所有,未经授权,谢绝转载。
上一篇:BIM等级考试二级结构教程 | 2.8 结构基础族样板
下一篇:BIM等级考试二级结构教程 | 2.10 创建扩张基础(上)
推荐专题