下载app免费领取会员
文章来源:BIMproject 王冯聪

S型存水弯与P型存水弯有很多相似的地方,这里也不做过多的重复讲述,从不一样的地方开始:
1、修改绘制模型线作为放样路径。
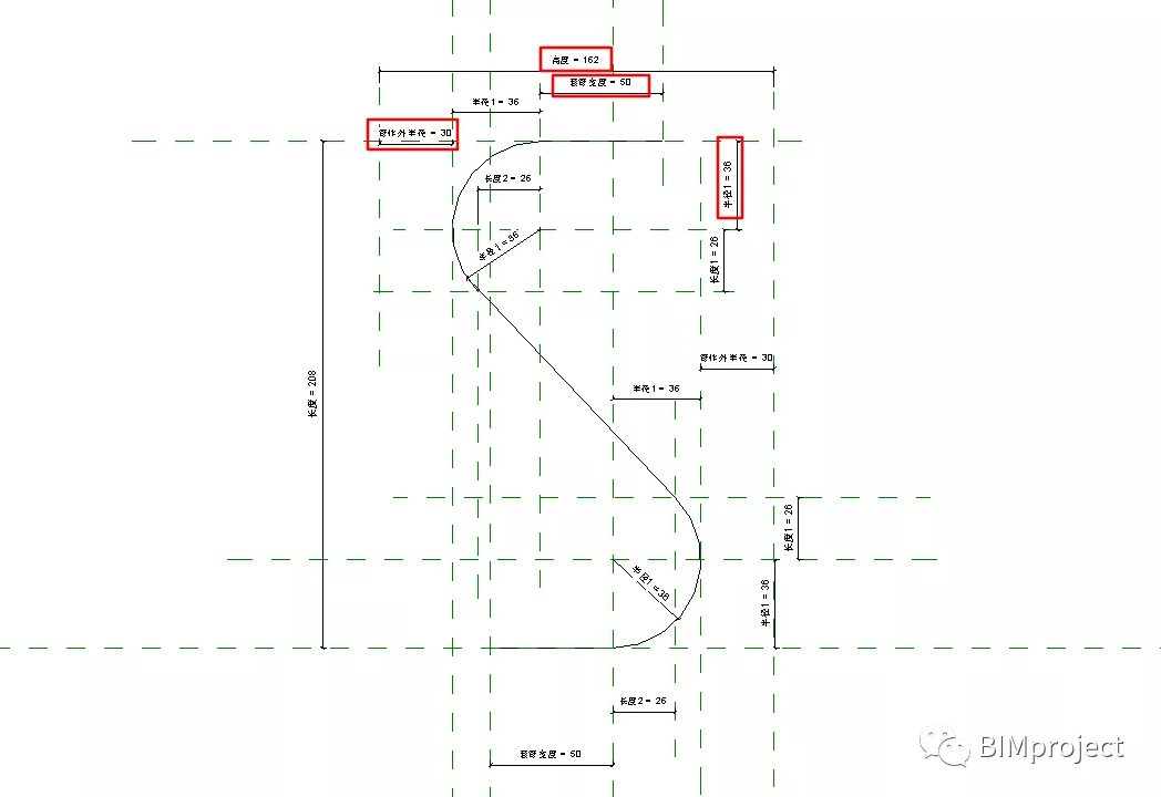
将P型存水弯模型线绘制完成,我们可以直接在其基础上进行修改添加;修改的部位就仅仅是将较小的弧形继续拉大,与另一端对称,修改“套管宽度”标签为“半径1”;竖直方向绘制一个参照面标注为“管件外半径”;出口高度就要修改了,名称修改为“高度”,并重新标注最边缘两个参照面;末端套管终点位置添加一个竖直的参照面,并标注“套管宽度”标签;输入公式与P型存水弯一致;出口高度参数可以直接删除;

2、导入查找表格数据,关联模型参数。
打开“族类型”对话框添加名称为“查找表格”文字类型的参数;
然后点击“族类型”对话框中“查找表格”下面的“管理”按钮,导入文件路径为:C:ProgramDataAutodeskRVT2015LookupTablesPipe下的“TrapS-PVC-U-Drainage”(示例)表格文档;同时将将该表格文档名称复制粘贴作为“查找表名称”值;
根据导入的表格内容,我们还需要在族类型对话框添加实例参数:管件外径、公称直径、公称外径、壁厚、套管外径、;并添加公式关联参数值:壁厚=size_lookup(查找表名称,"WThk",0.02*公称直径+1.1mm,公称直径);公称外径=size_lookup(查找表名称,"NOD",if(公称直径>200mm,公称直径,公称直径+10mm),公称直径);套管宽度=size_lookup(查找表名称,"SWid",0.24*公称直径+21.7mm,公称直径);套管外径=公称外径+壁厚*2;管件外径=公称外径;套管外半径=套管外径/2;管件外半径=管件外径/2;(以上部分与P型存水弯一样);长度=size_lookup(查找表名称,"Lgt",2.19*公称直径+45.4mm,公称直径);高度=size_lookup(查找表名称,"Hgt",1.74*公称直径+42.9mm,公称直径);

3、检查修正,完成最终模型。
当公称直径太大,要保证弧形区域能创建出模型,我们需要将这种情况进行修正,输入公式:半径1=if((长度-套管宽度-出口高度+管件外半径)/(2*cos(45°)+2*sin(45°)-1)>管件外半径+1mm,(长度-套管宽度-出口高度+管件外半径)/(2*cos(45°)+2*sin(45°)-1),管件外半径+1mm);
4、放样创建实体模型。
点击创建选项卡下的“放样”命令拾取模型线,点击完成切换到里面视图编辑轮廓,并将轮廓半径指定标签“管件外半径”,然后再放样绘制套管,并指定标签“套管外半径”;
5、添加连接件,导入项目。
在“创建”选项卡下点击“管道连接件”分别给存水弯添加连接件,并对连接件直径值关联到公称直径标签,二维表达这里不做详细介绍。

Revit中文网作为国内知名BIM软件培训交流平台,几十万Revit软件爱好者和你一起学习Revit,不仅仅为广大用户提供相关BIM软件下载与相关行业资讯,同时也有部分网络培训与在线培训,欢迎广大用户咨询。
网校包含各类BIM课程320余套,各类学习资源270余种,是目前国内BIM类网校中课程最有深度、涵盖性最广、资源最为齐全的网校。网校课程包含Revit、Dynamo、Lumion、Navisworks、Civil 3D等几十种BIM相关软件的教学课程,专业涵盖土建、机电、装饰、市政、后期、开发等多个领域。
需要更多BIM考试教程或BIM视频教程,可以咨询客服获得更多免费Revit教学视频。
本文版权归腿腿教学网及原创作者所有,未经授权,谢绝转载。
上一篇:Revit技巧 | revit怎么建法兰三通?Revit管件族等径法兰三通制作流程
下一篇:Revit技巧 | revit如何启用能量模型?离执行能量优化还远吗?可能这几项你还没准备好!
推荐专题