完善主体资料,免费赠送VIP会员!
* 主体类型
* 企业名称
* 信用代码
* 所在行业
* 企业规模
* 所在职位
* 姓名
* 所在行业
* 学历
* 工作性质
请先选择行业
您还可以选择以下福利:
行业福利,领完即止!

下载app免费领取会员

NULL

ad.jpg

Revit 2019新功能介绍一(增加了很多实用功能)

发布于:2018-04-12 12:46:29
首页/技术分享/Revit
收藏
42284

网友投稿

更多

Revit 2019下载:Autodesk Revit 2019简体中文版下载带注册机


Revit2019新功能。Revit 2019包括用于预制混凝土的详细钢结构设计和制造功能的扩展建模功能。Revit 2019还为复杂的管道网络建模提供了主/辅水力网络的改进。

    软件从:

    显示、设计、出图、钢结构、等很多方面加强了自由度和控制!

遵循Revit路线图
正如公众Revit路线图中详述的那样,作为产品经理的我们的目标是塑造和发展Revit,以支持您在整个项目生命周期中的工作,并且软件开发跨越三个领域:
设计:使您能够高效创建捕捉设计意图的信息的功能。
优化:努力完善Revit软件,帮助您使用专为提高性能和可扩展性而设计的软件进行高效分析,迭代和做出明智决策。
Connect:通过帮助项目团队连接工作流程并在整个项目生命周期内进行协作来赋予项目团队权力的能力。
设计
Revit 2019中新增的许多功能有助于您更高效和直观地创建捕捉设计意图的信息。借助控制视图图形的功能,让您在更现代的沉浸式3D环境中工作,并以更直观的方式进行沟通,Revit 2019帮助您完成核心工作。
使用过滤器中的“或”可以更好地控制视图图形
现在Revit 2019中包含的头号客户请求是添加了变量“或”来查看过滤器。通过能够创建具有多个规则的视图过滤器和具有AND和OR条件组合的嵌套集,可以更好地控制视图图形。

一、Revit 2019中的新增功能过滤器多了and or not

腿腿教学网-Revit 2019新功能介绍一(增加了很多实用功能)

二、双击Revit项目浏览器视图名称既可以重命名视图名称


腿腿教学网-Revit 2019新功能介绍一(增加了很多实用功能)

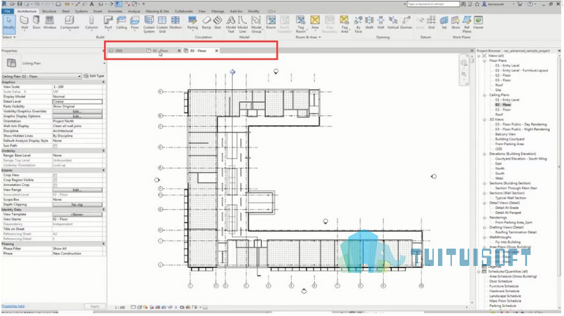
三、Revit视图窗口上方增加了标签栏,切换和关闭更简单

腿腿教学网-Revit 2019新功能介绍一(增加了很多实用功能)


四、revit2019为了更适应钢管结构模型的创建单独增加了钢结构选项卡

腿腿教学网-Revit 2019新功能介绍一(增加了很多实用功能)

五、Revit2019增加了多个剖切框功能,在视图属性剖切框可以自由选择

腿腿教学网-Revit 2019新功能介绍一(增加了很多实用功能)腿腿教学网-Revit 2019新功能介绍一(增加了很多实用功能)

六、Revit2019取消了裁剪框,在三维视图,视图属性可以切换不同的显示方式

腿腿教学网-Revit 2019新功能介绍一(增加了很多实用功能)

七、Revit2019增加了标注功能,尺寸标注更自由

腿腿教学网-Revit 2019新功能介绍一(增加了很多实用功能)

八、Revit2019增强楼梯扶手功能,可以打断扶手,让布置扶手更方便

腿腿教学网-Revit 2019新功能介绍一(增加了很多实用功能)

九、Revit2019增加了在三维视图显示标高

腿腿教学网-Revit 2019新功能介绍一(增加了很多实用功能)

本文版权归腿腿教学网及原创作者所有,未经授权,谢绝转载。

未标题-1.jpg

上一篇:在项目中如何剪切载入族?

下一篇:Revit 2019新功能介绍二(增加了很多实用功能)

60acb4e0ef112.png