下载app免费领取会员
1. 暖通风系统模型
1. 绘制空调送回风系统
1. 图纸分析
n 系统图分析
06-塔楼风系统图:10、20层是机房层,向上向下送风;19层的空调机组在20层,处理过的空气是从20层送下来的,20层的空调机房会单独一个课程讲,我们这边就绘制一个竖向的风管作为预留即可。
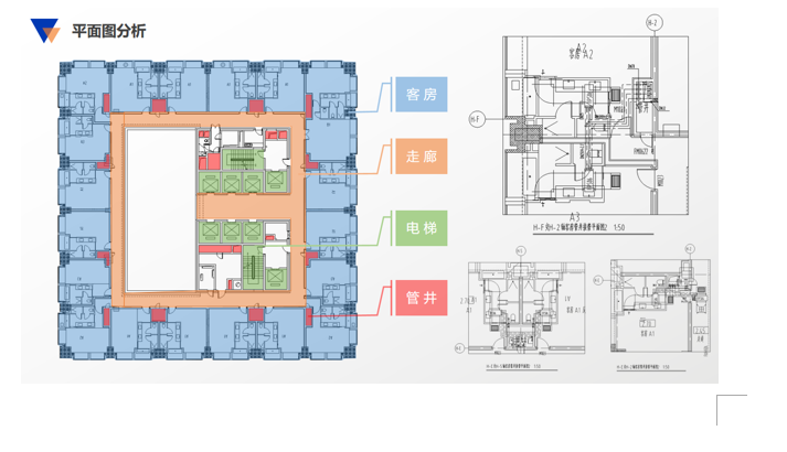
n 平面图分析

有3种户型,根据管井大样图也看得出来,其实绘制的方式都是一样的,我们以左上角的房间为例,带领大家创建空调风系统。
风机盘管:FPS04、FPS06;空调送回风在平面图中是绿色的,与风机盘管相连。
n 吊顶标高分析

对应土建模型里面:风管风道都是在卫生间的,卫生间的吊顶一般在2.2-2.4m,所以按照和走廊相同的2.45m来计算,房间吊顶按照图中的2.7m。
2. 放置风机盘管
打开上一节所创建好的项目,另存为:AC_02_酒店项目_空调送回风系统
n 风机盘管类型

19层平面图中有FPS-06和FPS-04两种风机盘管
n 了解四管制双盘风机盘管

二管制:供冷供热合用同一管路系统。可节省投资费用,减少维修量,是空调系统中普遍采用的一种管制方式,但不能满足全年性空调系统的需要。

四管制:采用单独的冷热水供水管和回水管系统,进出水管安装转换控制阀,主要是供全年使用的空调系统,即随时都有冷源和热源使用,通过温度调节阀控制转换阀调节冷、热水量。
四管制风机盘管有热盘管和冷盘管。二管制风机盘管只有共用盘管。
n 了解风机盘管的安装

软管的作用:减少震动;方便与风口的连接(对应吊顶的位置)
n 载入风机盘管族

有两个方向的风机盘管,都载入进来

复制重命名为:FPS-06;修改标高、制冷量和风量(实例属性)
房间吊顶高度:2.7m;卫生间吊顶高度一般在2.2-2.4m,和走廊一样,设置在2.45m的位置。根据管井大样图,放置在2500的位置,后面布置风管之后再进行调整。

下一节绘制送回风管,在这之前,请大家先安装鸿业BIMspace这个插件

3. 绘制送风管和回风管
n 定义系统类型

快捷键:DT

布管系统配置(给大家的样板已经定义好了)

n 定义尺寸
根据平面图和管井大样图,定义尺寸

n 高度定位
① 对正方式

所以建议选择垂直对正-中


② 标高说明

③ 调整偏移值
调整风管的偏移值根据图纸调整到的2640的位置

n 绘制管道
注意,要变成圆形说明与风机盘管相连接了。

结合快捷键AL进行对齐
n 弯头

4. 布置回风口
n 送风口
由于送风口是空调送风和新风这两个系统共用的,绘制完新风系统再绘制送风口
n 回风口
根据设备表中,回风口是400*600的单层百叶风口

放置在图纸上合理的位置,连接到回风管上。

2. 绘制新风系统
1. 图纸分析
n 结合图例可知,玫红色的是新风,黄色的是排风

n 新风口和空调送风是共用风口的,说明空调送风的中心高程和新风的中心高程相同

n 新风管的尺寸

高度和空调送风一致,共用风口,所以它们的偏移值要一致,都是2640
n 风管附件

每个新风管和排风管的支管上都有防火阀、定风量阀和消声器,这几个阀门附件是可以变换位置的,不一定要完全按照图纸上的位置
主要说消声器,因为消声器的长度比较长,可能会影响到风管的绘制

消声器的长度为1米,风管只有700+,风管的位置需要改变

2. 绘制新风管道(DT)
n 定义系统类型

本文版权归腿腿教学网及原创作者所有,未经授权,谢绝转载。
上一篇:酒店项目BIM建模:暖通专业模型(暖通风系统模型-下篇)
下一篇:Henning Larsen联合体新作:丹麦Højvangen教堂,宗教与日常
推荐专题